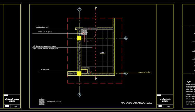
Return to "82.WC Layout Plan and elevations details AutoCAD drawing download" 82.WC Layout Plan and elevations details AutoCAD drawing downloadNext