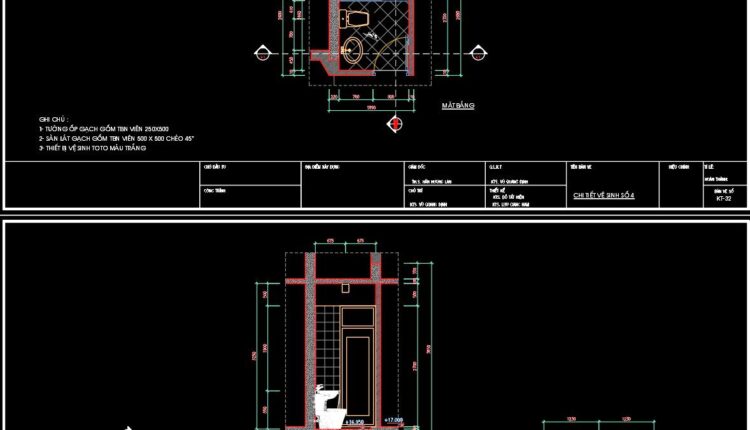
Return to "156. WC Layout Plan and elevations details CAD drawings download" 156. WC Layout Plan and elevations details CAD drawings downloadNext Previous