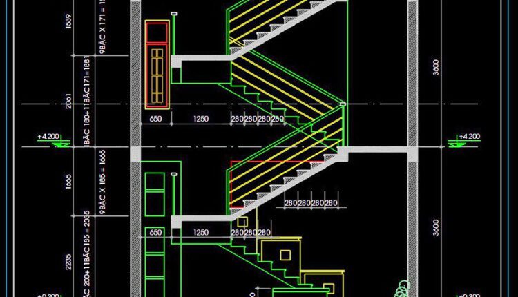
Return to "206. Download detailed CAD drawings of townhouse stairs" 206. Download detailed CAD drawings of townhouse stairs (3) Previous