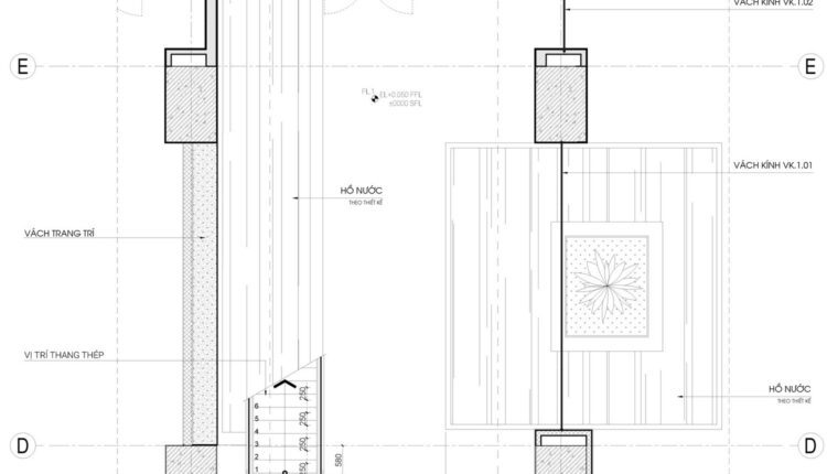
Return to "51.Detailed drawings of stairs in autocad file" 51.Detailed drawings of stairs in autocad fileNext