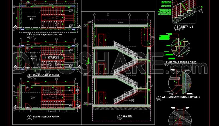
677. CAD DWG Template – Hypermarket Stair Construction Details (1)

Advertisements

677.-cad-dwg-template-hypermarket-stair-construction-details

💡Remark: You’re welcome to contribute resources to DWGshare.com by sending us your PDF, DWG, or ZIP files via email at [email protected]. Thank you — we truly hope that each of your contributions will help build a stronger and more connected CAD community. If you find our work useful, your support would mean a lot and help us grow even better.DONATE

Advertisements

This website uses cookies to improve your experience. We'll assume you're ok with this, but you can opt-out if you wish. AcceptRead More