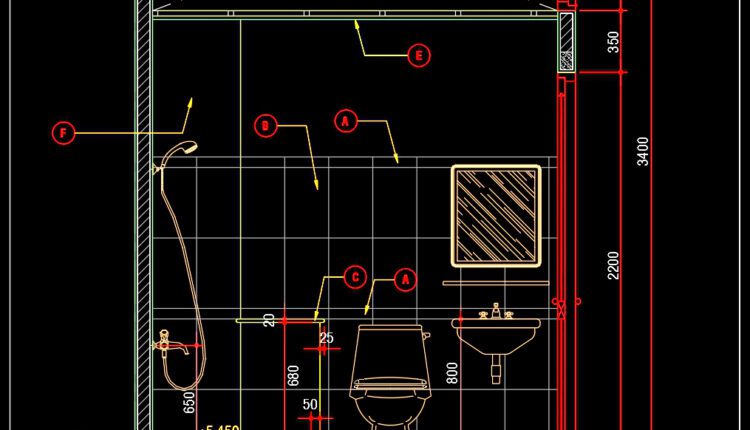
Return to "91.WC Layout elevations details AutoCAD drawing download" 91.WC Layout elevations details AutoCAD drawing downloadNext Previous