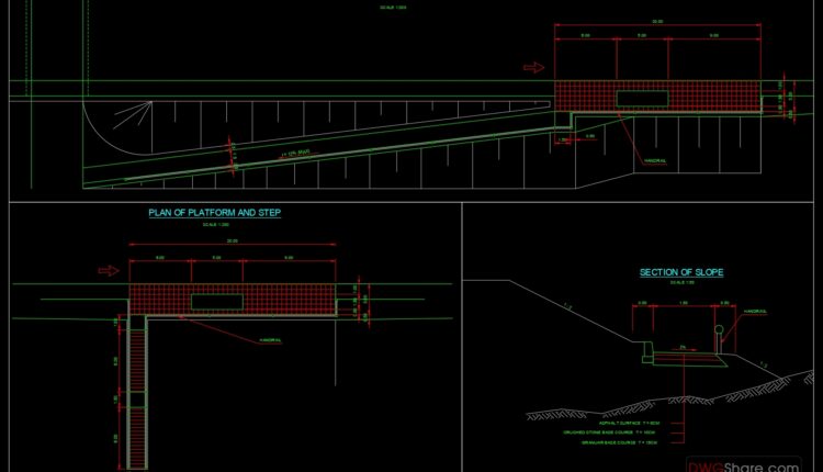
Return to "Bus Stop Plan and Sections Details AutoCAD File DWG" Bus Stop Plan and Sections Details AutoCAD File DWG Previous