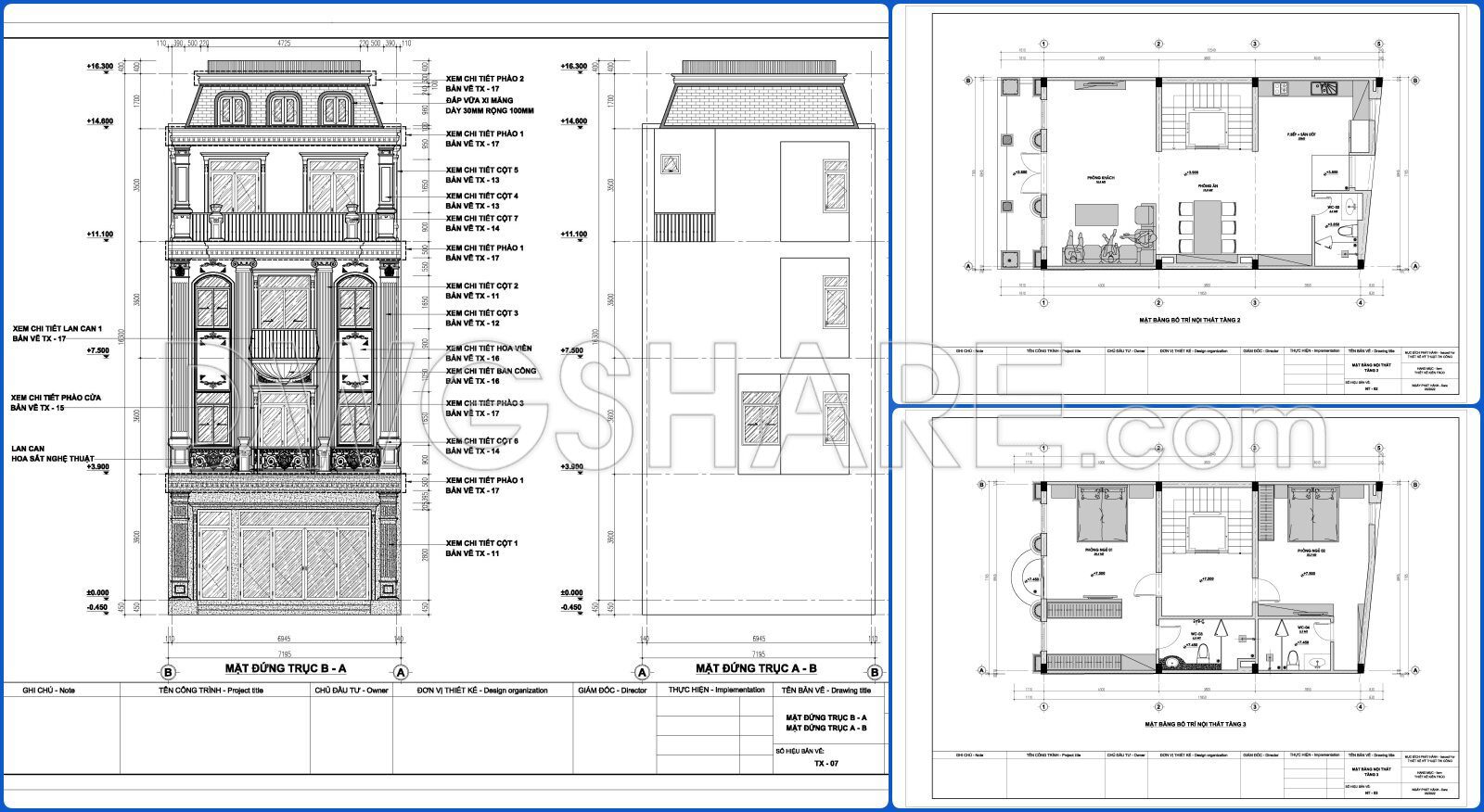
758. Free Download Architectural PDF Drawings for a 3-Story European Classic Style House (Dimensions: 7.1m x 12.5m)
Advertisements





758. Free Download Architectural PDF Drawings for a 3-Story European Classic Style House (Dimensions: 7.1m x 12.5m)
Download a high-quality set of architectural PDF drawings for a 3-story European classic-style house. This package includes detailed floor plans, elevations, sections, and construction details, making it a valuable resource for architects, designers, and builders. The house features elegant classical elements, spacious interiors, and a well-structured layout with a footprint of 7.1m x 12.5m. These ready-to-use PDF files provide a clear and professional presentation, perfect for reference and project planning.
This complete drawing set includes 198 drawings, covering all major design categories such as: architectural design, structural design, electrical and plumbing design, HVAC design, and lightning protection design. Download now for free!
- File format: .PDF
- Size: 35.3 MB
- Source: Collect
- AutoCAD platform 2018 and later versions. For downloading files there is no need to go through the registration process
Additionally, you can download more Architecture House Plan And Building Sectional Elevation Drawing DWG File here
Advertisements