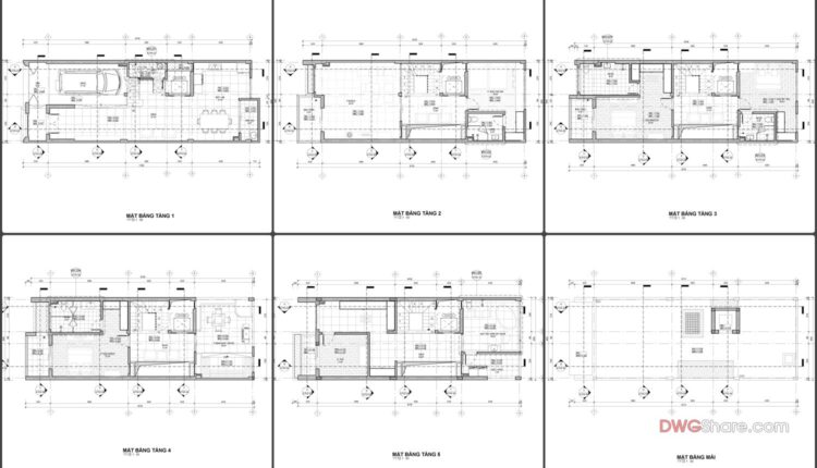
Return to "Modern 5-Story House Project PDF File Free Download 6×16.7m" Modern 5-Story House Project PDF File Free DownloadNext Previous