153. Free Download Electrical Design Drawings for a 4-Story Townhouse
Advertisements





153. Free Download Electrical Design Drawings for a 4-Story Townhouse
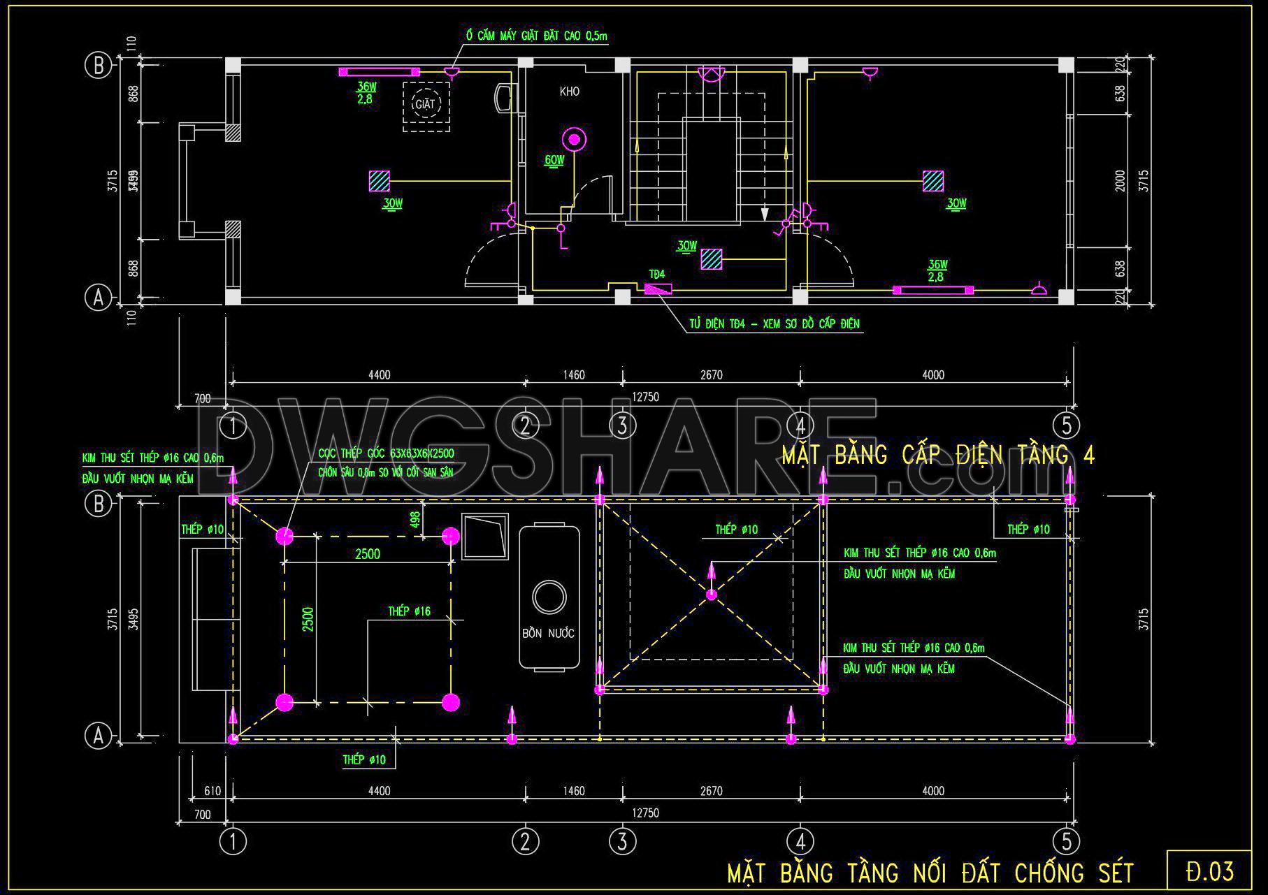
The electrical design drawings for a 4-Story Townhouse are an essential resource for architects, interior designers, and construction teams alike. These comprehensive CAD DWG files, available for free download, provide a clear and structured approach to electrical system planning and execution. The documentation encompasses several critical components of electrical design, making it highly valuable for both educational and practical applications.
The primary drawing type included is the electrical floor plan layout, which meticulously details the wiring paths and electrical infrastructure required for a multi-story residential building. This layout ensures that all electrical components are efficiently located and integrated, reducing potential conflicts and enhancing system efficiency.
Within these files, you will find detailed circuit schematics that illustrate the relationship between various elements such as circuit breakers, switches, and outlets. This information is crucial during the design development stage, allowing architects to foresee electrical distribution needs and interior designers to plan for lighting fixtures and other electrical appliances with precision.
A key component of these drawings is the supply and distribution board diagram, which maps out the electrical supply path throughout the townhouse. The specifics, such as grid lines, dimensions, and circuit pathways, are meticulously noted, ensuring that every electrical connection is accounted for. This level of detail is invaluable for construction teams who rely on these drawings for installing and coordinating the electrical systems on site, minimizing errors and ensuring adherence to industry standards.
Additionally, the material and equipment list offers a comprehensive inventory of materials and their specifications, supporting construction teams in resource planning and procurement. This means fewer disruptions during the construction phase and optimized project timelines.
The practical value of these CAD drawings cannot be overstated. They are created with high technical accuracy, enabling easy modification and reuse in software like AutoCAD. This facilitates not only improved coordination between design and construction but also assists in cost optimization by reducing errors and rework.
Suitable for a range of applications, these CAD files can serve as an excellent design reference for professionals, a rich study and research resource for students, and a robust foundation for developing technical drawings. As they are available for free download, they offer a tremendous opportunity for those looking to enhance their architectural and construction projects efficiently.
I also recommend downloading other Mechanical, Electrical CAD drawings for your project reference.
- File format: .DWG
- Size: 211 KB
- Source: DWGshare
- AutoCAD platform 2018 and later versions. For downloading files there is no need to go through the registration process
Advertisements