76. Free CAD Drawings of Apartment Interior Design Living Room and Kitchen
Advertisements




76. Free CAD Drawings of Apartment Interior Design Living Room and Kitchen
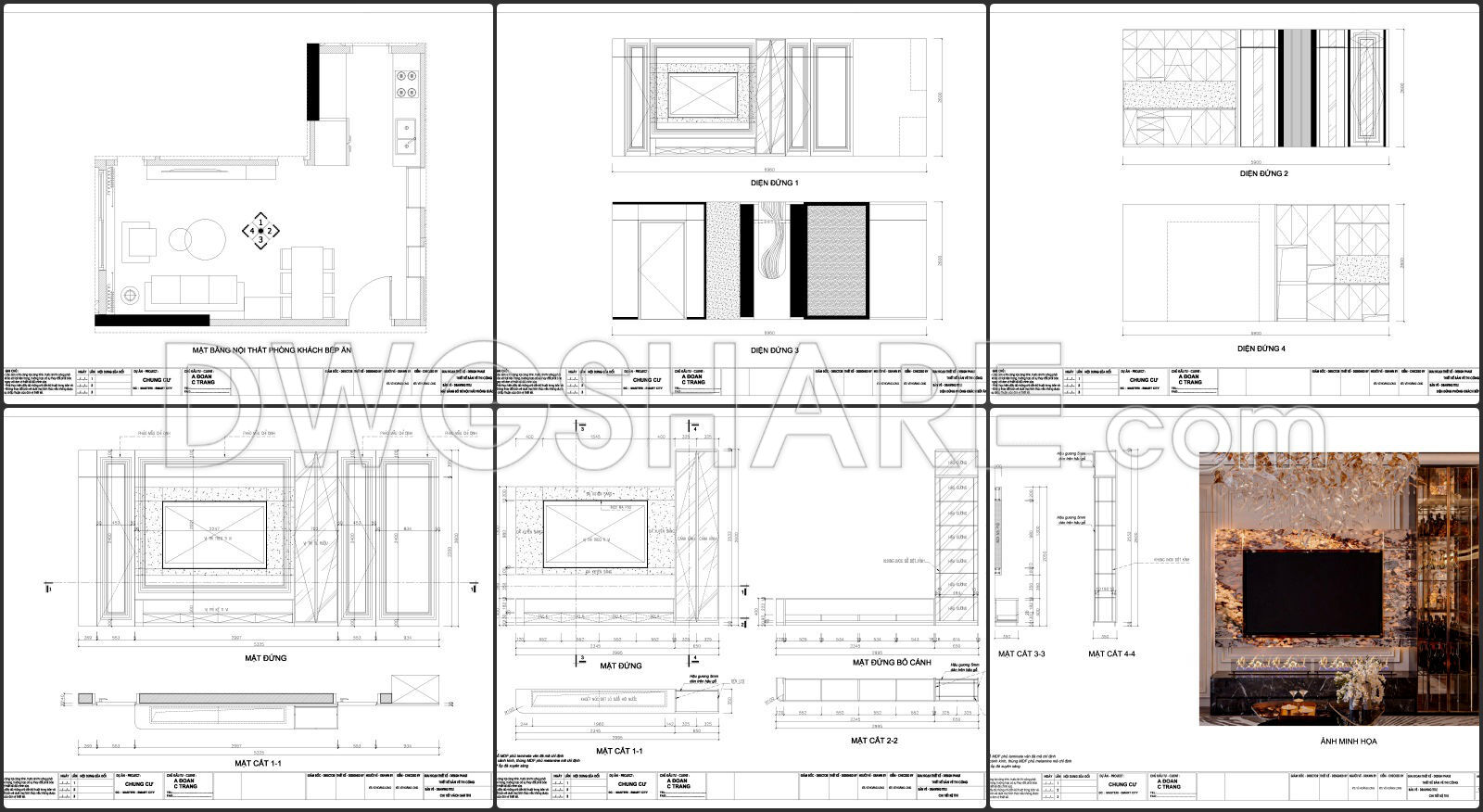
This collection of CAD drawings provides a detailed overview of apartment interior design for a living room and kitchen. The drawings include various views and specifications:
- Floor Plan: Displays the overall layout with dimensions.
- Elevations: Side and front views highlighting cabinetry and fixtures.
- Sectional Views: Cross-sections showing detailed construction elements.
- 3D Renderings: Visualizations of the living room and kitchen setup.
- Materials and Finishes: Specifications for usage of metal veneers and other materials.
These designs incorporate precise measurements and materials suitable for modern residential spaces. Each component, from furniture to cabinetry, is clearly defined to assist with construction and interior design formulation.
Professional Value: Ideal for architects, interior designers, and builders in planning and executing residential projects, providing a valuable resource for comprehensive design and construction insights.
Download these detailed CAD drawings for an in-depth understanding of apartment interior design.
I also recommend downloading other Living room CAD drawings for your project reference.
- File format: .DWG
- Size: 7 MB
- Source: DWGshare
- AutoCAD platform 2018 and later versions. For downloading files there is no need to go through the registration process
Advertisements