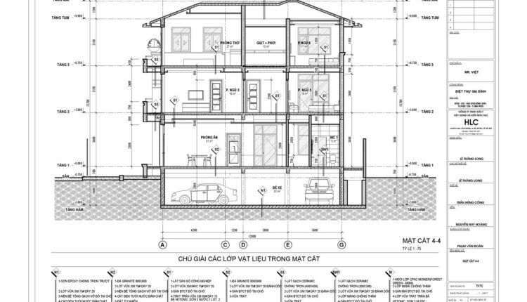
Return to "House At Home, 216sqm, 3 Floors Full File Free Download" House At Home, 216sqm, 3 Floors Full File Free Download (17) Previous