41. Free Download Architectural Drawings of a Cultural Center – AutoCAD DWG
Advertisements





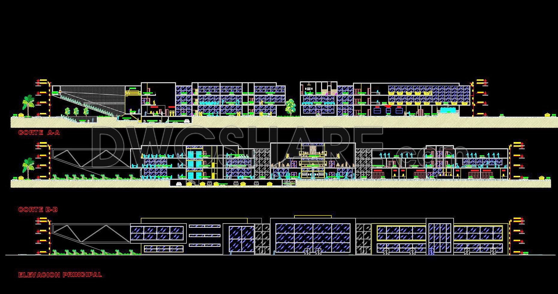
41. Free Download Architectural Drawings of a Cultural Center – AutoCAD DWG
Explore the highly detailed architectural sections and elevations of a state-of-the-art cultural center through our comprehensive CAD DWG files. This free download architectural drawings package offers precision and quality essential for architects and construction professionals.
The available sections, including Corte A-A and Corte B-B, provide an insightful view into the vertical and horizontal arrangements of the cultural center. These sections are instrumental in understanding the spatial organization and flow, illustrating how different spaces interconnect.
The architectural elevations available showcase the exterior façade of the building from various perspectives, including Elevation Principal, Elevation Jr. Porvenir, and Elevation Av. Miguel Grau. These drawings highlight the building’s aesthetic elements and architectural features, providing a comprehensive external view.
Key components within these drawings include:
– Functional floor plan layout that illustrates the strategic arrangement of spaces across different levels.
– Elevations and sections that expose the intricate design details and support effective visualization of structural and finishing elements.
– Construction or furniture detail drawings that are crucial for guiding the interior fit-out and ensuring a consistent construction approach.
– Grid lines, dimensions, and level markers that offer vital reference points, ensuring measurement accuracy and seamless construction coordination.
The practical applications of these drawings are substantial. Architects will find them invaluable during the design development phase, offering insights into spatial planning and external design elements. Interior designers can leverage these drawings to prepare precise technical details, aiding in the accurate installation of finishes and furniture. Similarly, construction teams benefit from these detailed representations for efficient site planning and execution.
The free download CAD DWG files stand out for their:
– High technical accuracy ensuring fidelity to design intentions.
– Ease of modification and reuse in AutoCAD, allowing professionals to adapt and adjust designs efficiently.
– Improved coordination between design and construction, minimizing potential errors and discrepancies.
– Reduced errors and cost optimization through precise documentation and clarity.
Download these CAD DWG files for design reference, enhance your study and research, or use them as a reliable base for technical drawing development. Ensure your architectural project benefits from superior design and execution with these quality resources available for free.
I also recommend downloading other cultural center CAD drawings for your project reference.
- File format: .DWG
- Size: 6 MB
- Source: DWGshare
- AutoCAD platform 2018 and later versions. For downloading files there is no need to go through the registration process
Advertisements