Advertisements



859. Download the conceptual design drawings of a 3-storey house with 3 bedrooms, size 6.9m x 9.6m
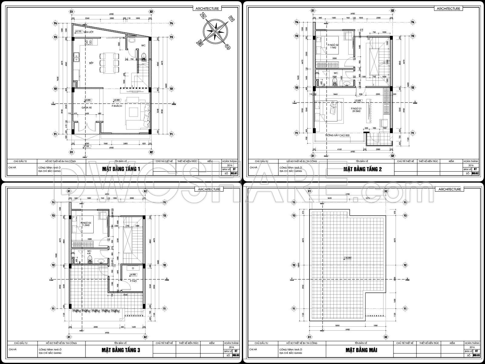
Looking at the overall set of drawings, this is a well-organized 3-storey townhouse designed within a compact footprint of 6.9m x 9.6m. The facade follows a modern style, with clean geometric volumes and a balanced mix of solid and void elements. It doesn’t try too hard to impress, but still feels refined. One standout feature is the spacious upper balcony, which works both as a relaxing outdoor space and as a way to improve natural ventilation.
On the ground floor, the layout is quite familiar but thoughtfully arranged. The front area is used as a garage, leading into the living room and then seamlessly connecting to the kitchen and dining space. This linear flow makes daily movement intuitive and comfortable. The kitchen is placed toward the back, near the staircase and a restroom, which is practical for everyday use.
Moving up to the second floor, this level is dedicated to private living spaces with two bedrooms. The larger bedroom is positioned at the front, taking advantage of natural light from the balcony. The second bedroom is more compact, suitable for children or guests. A shared bathroom sits centrally, making it easily accessible from both rooms.
The third floor offers a more flexible arrangement. There is an additional bedroom at the front, while the rear is reserved for a laundry area and a worship room. This setup reflects a common approach in Vietnamese homes, balancing modern needs with traditional elements.
Section drawings show that the floor heights are relatively generous, helping the interior feel open rather than cramped. The staircase is positioned to one side, saving space while still allowing for a subtle vertical connection and light flow. The flat roof keeps construction simple and aligns well with the overall modern aesthetic.
Overall, this design doesn’t aim to be flashy, but it delivers a practical and livable solution. The spaces are efficiently planned—nothing excessive, yet nothing feels restrictive—making it a comfortable long-term home for a young family.
I also recommend downloading other House CAD drawings for your project reference.
- File format: .DWG; .PDF
- Size: 4.39 MB
- Source: DWGshare
- AutoCAD platform 2018 and later versions. For downloading files there is no need to go through the registration process
Advertisements