132. Free download electrical and internet cad drawings for 4-storey house
Advertisements






132. Free download electrical and internet cad drawings for 4-storey house
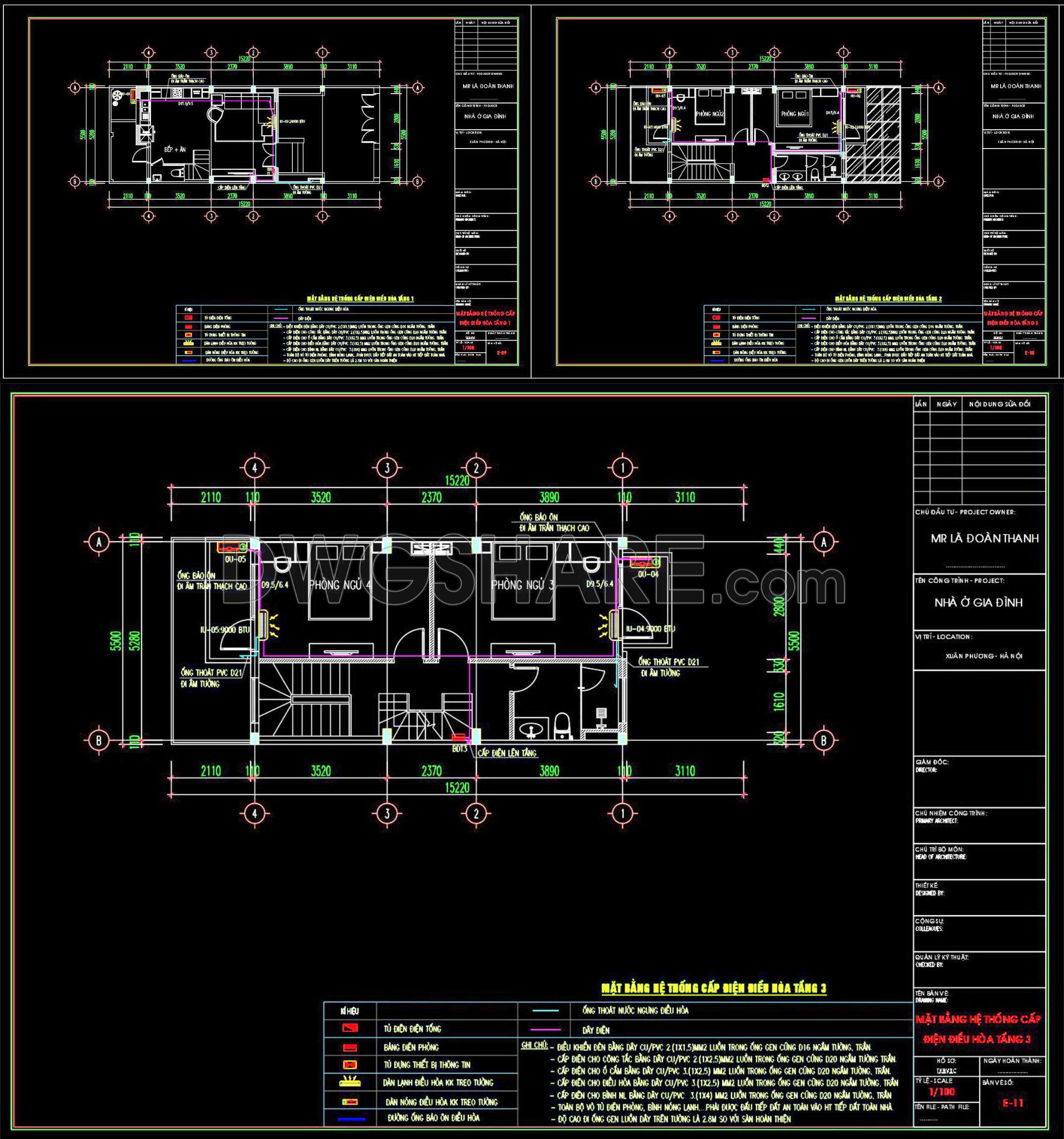
Explore expertly crafted CAD drawings for a comprehensive 4-storey house design, available for free download. These detailed files provide multiple views, including electrical and internet system layouts, streamlining project planning and implementation. The blueprints feature precise measurements that support various architectural and construction activities, ensuring accuracy and facilitating easy modifications. Key components include:
- Electrical Schematics: Detailed layout for safe and efficient power distribution.
- Internet Cabling Plans: Organized network schematics for seamless connectivity.
- Floor Layouts: Clear and detailed plans for all four levels.
Utilizing these CAD drawings optimizes collaboration across architecture, interior design, and construction teams, promoting cost-efficient practices. The accessibility of these free download files offers a valuable resource for enhancing design precision and project execution.
I also recommend downloading other Mechanical, Electrical CAD drawings for your project reference.
- File format: .DWG
- Size: 373 KB
- Source: DWGshare
- AutoCAD platform 2018 and later versions. For downloading files there is no need to go through the registration process
Advertisements