869. Free Download 3-Storey House CAD Drawings – Floor Plans, Roof Plan & Layout Design
Advertisements

869. Free Download 3-Storey House CAD Drawings – Floor Plans, Roof Plan & Layout Design
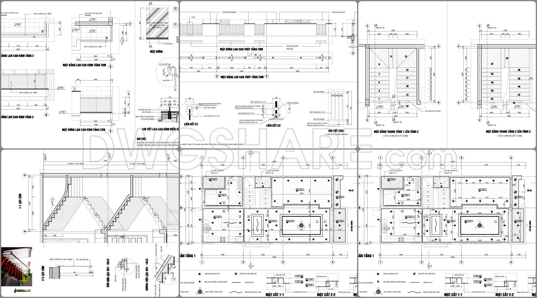
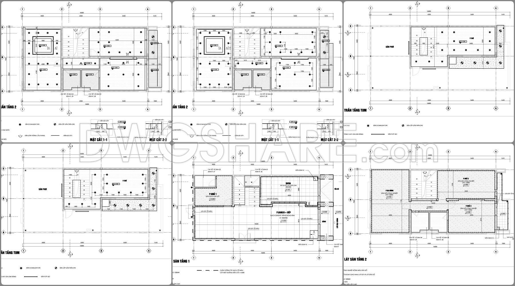
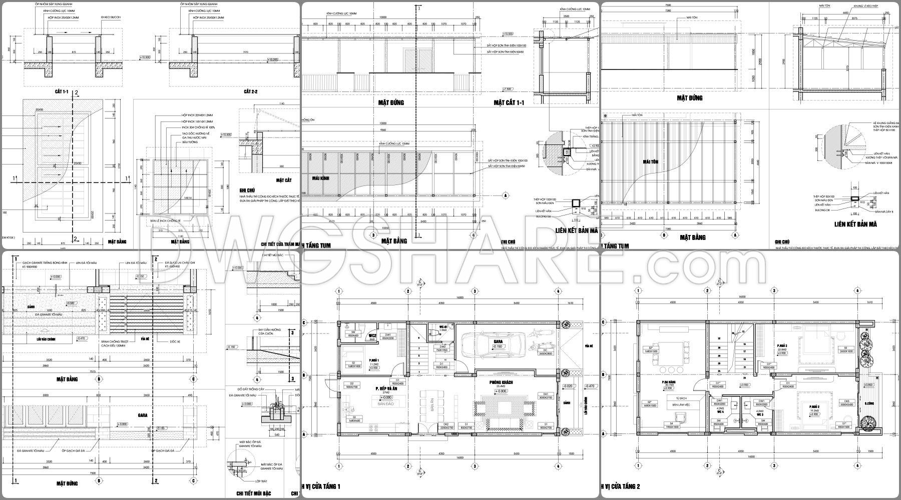
This CAD drawing set is a solid option for anyone looking for a practical 3-storey townhouse layout (7.5x16m) that can actually be built. The floor plans are laid out in a straightforward way: the ground floor focuses on shared living space and a garage, while the upper floors are arranged for comfortable bedrooms with good privacy and airflow. The roof plan is also included, giving you a clear idea of drainage and technical solutions.
What stands out is how efficient the internal circulation is—no wasted space. The bathrooms are placed logically, making plumbing much easier to handle. If you’re an architect or planning to build your own home, this set works well as a reference that you can tweak to suit your real needs.
I also recommend downloading other House CAD drawings for your project reference.
- File format: .DWG
- Size: 440 KB
- Source: DWGshare
- AutoCAD platform 2018 and later versions. For downloading files there is no need to go through the registration process
In addition, you can download the complete set of drawings included in the house design documentation via the link below.
This design package includes a complete set of AutoCAD drawings, high-quality 3D rendered images, and fully exported PDF files covering all design disciplines. It includes the following main categories:
- Full architectural drawings
- Full structural drawings
- Full electrical drawings
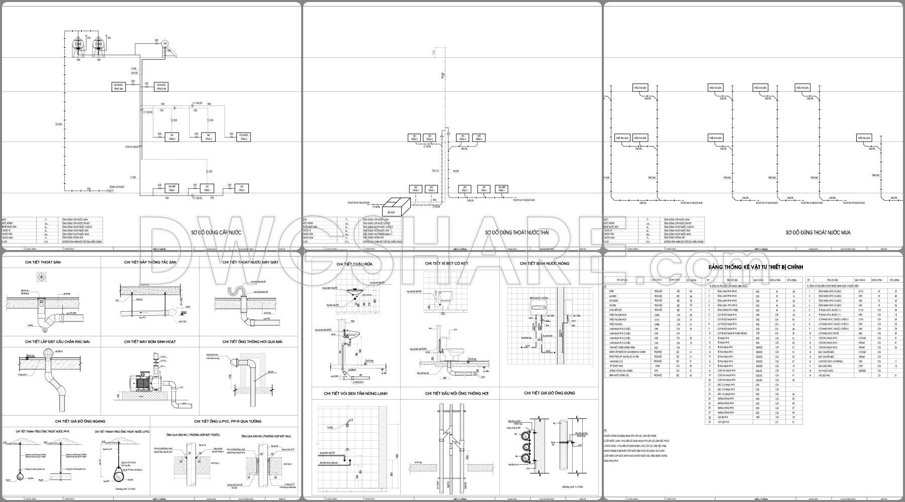
- Full water supply and drainage (plumbing) drawings


























Advertisements