360. Free Download of Structural CAD Drawings for 12.1m x 19.5m Reinforced Concrete Townhouse
Advertisements





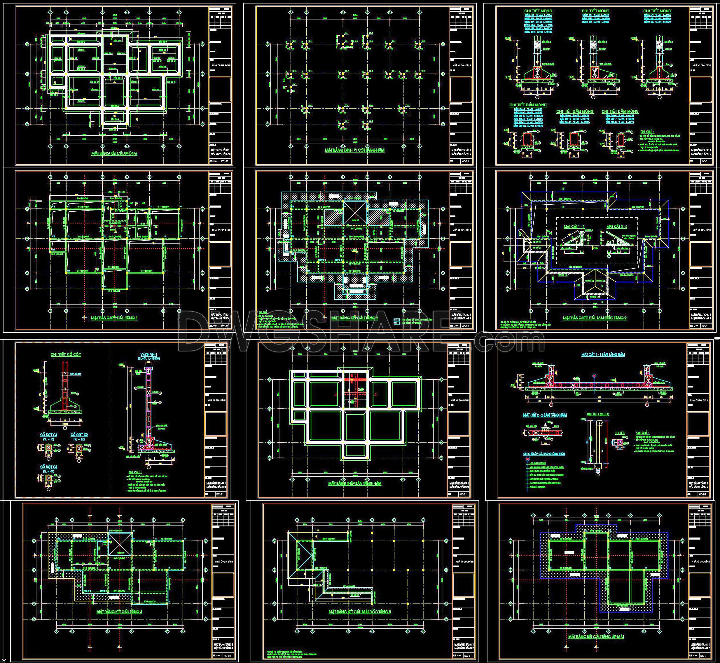
360. Free Download of Structural CAD Drawings for 12.1m x 19.5m Reinforced Concrete Townhouse
Unlock comprehensive insights into architectural design with these structural CAD drawings for a 12.1m x 19.5m reinforced concrete townhouse. These drawings provide detailed perspectives crucial for any construction or design project. The available files include multiple views, each serving distinct purposes from foundational layouts to detailed structural reinforcements.
The drawings cover essential components such as:
- Floor plans
- Sectional views
- Elevations
- Reinforcement details
Spanning dimensions of 12.1 meters by 19.5 meters, these plans offer precise measurements ensuring accuracy in project execution. Utilizing these CAD files streamlines architecture and interior design processes through unsurpassed accuracy and editing flexibility, facilitating smooth collaboration and cost optimization.
These valuable CAD DWG files are available as a free download, granting architects, designers, and builders unlimited access to enhance project efficacy. Download them today to leverage their full potential.
I also recommend downloading other Structural CAD drawings for your project reference.
- File format: .DWG
- Size: 1 MB
- Source: DWGshare
- AutoCAD platform 2018 and later versions. For downloading files there is no need to go through the registration process
Advertisements