Advertisements






187. Bedroom Ceiling Plan and Lighting Layout CAD Drawing Free Download
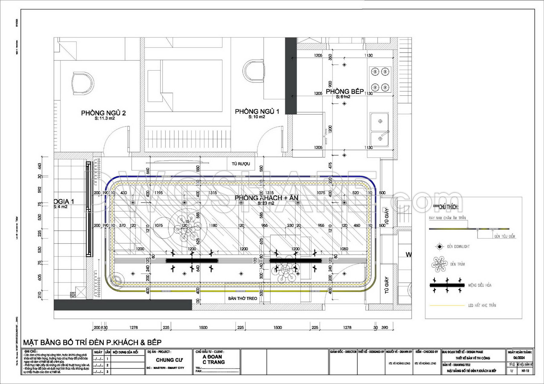
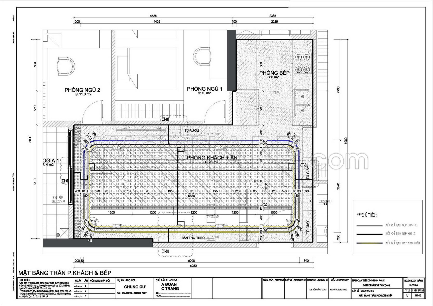
This collection of CAD drawings provides a comprehensive bedroom ceiling plan and lighting layout. These detailed designs are perfect for planning and executing elegant bedroom interiors. Key features include:
- Ceiling Plan: Dimensioned layout of the ceiling structure.
- Lighting Layout: Placement of fixtures, including downlights and LED strips.
- Material Specifications: Indications of materials used for different ceiling sections.
- Room Dimensions: Bedroom size of 11.3 m² and kitchen size of 6.6 m².
- Multiple Views: Includes both plan and elevation views for comprehensive understanding.
These drawings are invaluable for architects, engineers, and interior designers involved in construction projects. Easily integrate these plans into broader architectural designs to streamline the construction process.
I also recommend downloading other Bedroom CAD drawings for your project reference.
- File format: .DWG
- Size: 349 KB
- Source: DWGshare
- AutoCAD platform 2018 and later versions. For downloading files there is no need to go through the registration process
Advertisements