193. Free Download CAD Drawings of Ceiling and Lighting Layout for Building Design
Advertisements



193. Free Download CAD Drawings of Ceiling and Lighting Layout for Building Design
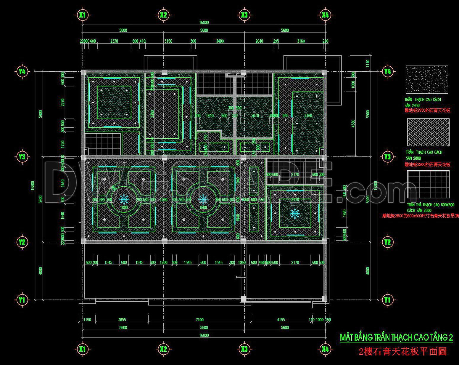
Unlock the potential of your building projects with these detailed CAD drawings showcasing comprehensive ceiling and lighting layouts. These files are crafted to enhance accuracy and efficiency in architectural design. Each layout provides multiple views of the project, ensuring that every angle is covered.
The drawings include:
- Floor-by-floor ceiling plans
- Detailed lighting arrangements
- Precise room dimensions
These plans are perfect for architects, interior designers, and construction professionals. With their intricate details and layout precision, they offer unparalleled benefits such as easy editing, smooth collaboration, and cost optimization. Utilizing these tools can significantly enhance your design process, ensuring projects are completed on time and under budget.
These CAD DWG files are available for free download, allowing you to incorporate them directly into your projects. Enhance your designs today with these invaluable resources.
I also recommend downloading other Ceiling CAD drawings for your project reference.
- File format: .DWG
- Size: 364 KB
- Source: DWGshare
- AutoCAD platform 2018 and later versions. For downloading files there is no need to go through the registration process
Advertisements