340. Free download of CAD technical drawings for the construction of bathrooms in townhouses
Advertisements




340. Free download of CAD technical drawings for the construction of bathrooms in townhouses
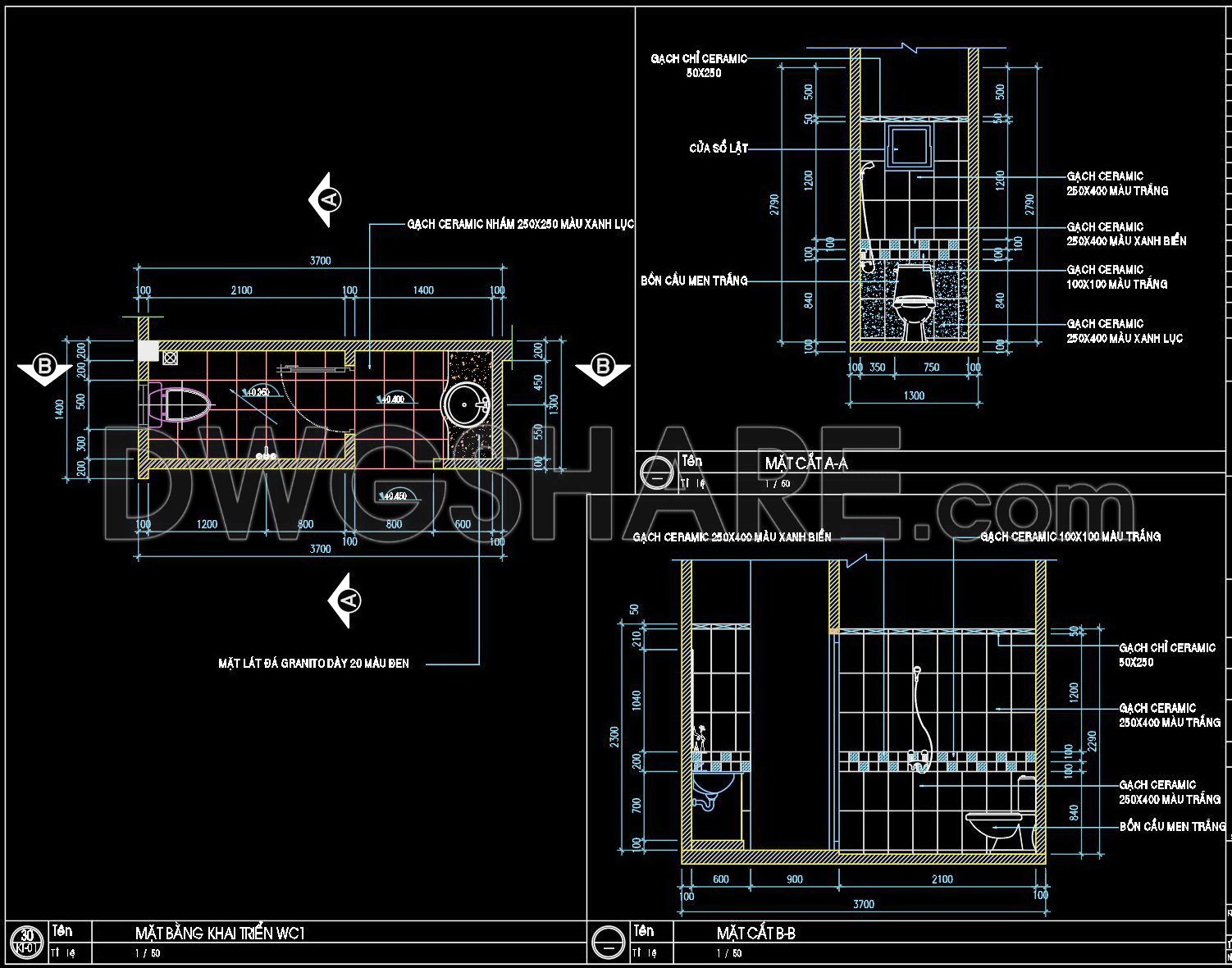
The CAD technical drawings for the construction of townhouse bathrooms include detailed plans, elevations, sections, and layout designs. These drawings specify the dimensions, materials, plumbing, electrical fixtures, and installation methods required to construct the bathrooms. They provide precise guidelines for contractors and builders to ensure that the bathrooms are constructed according to the design specifications and comply with building codes.
You can also find a wider selection of free Cad Blocks and DWG models available for download here: Free CAD Blocks download
- File format: .DWG
- Size: 360 KB
- Source: dwgshare.com
- AutoCAD platform 2018 and later versions. For downloading files there is no need to go through the registration process
Advertisements