379. Free Download Detailed Residential Bathroom CAD Drawings
Advertisements




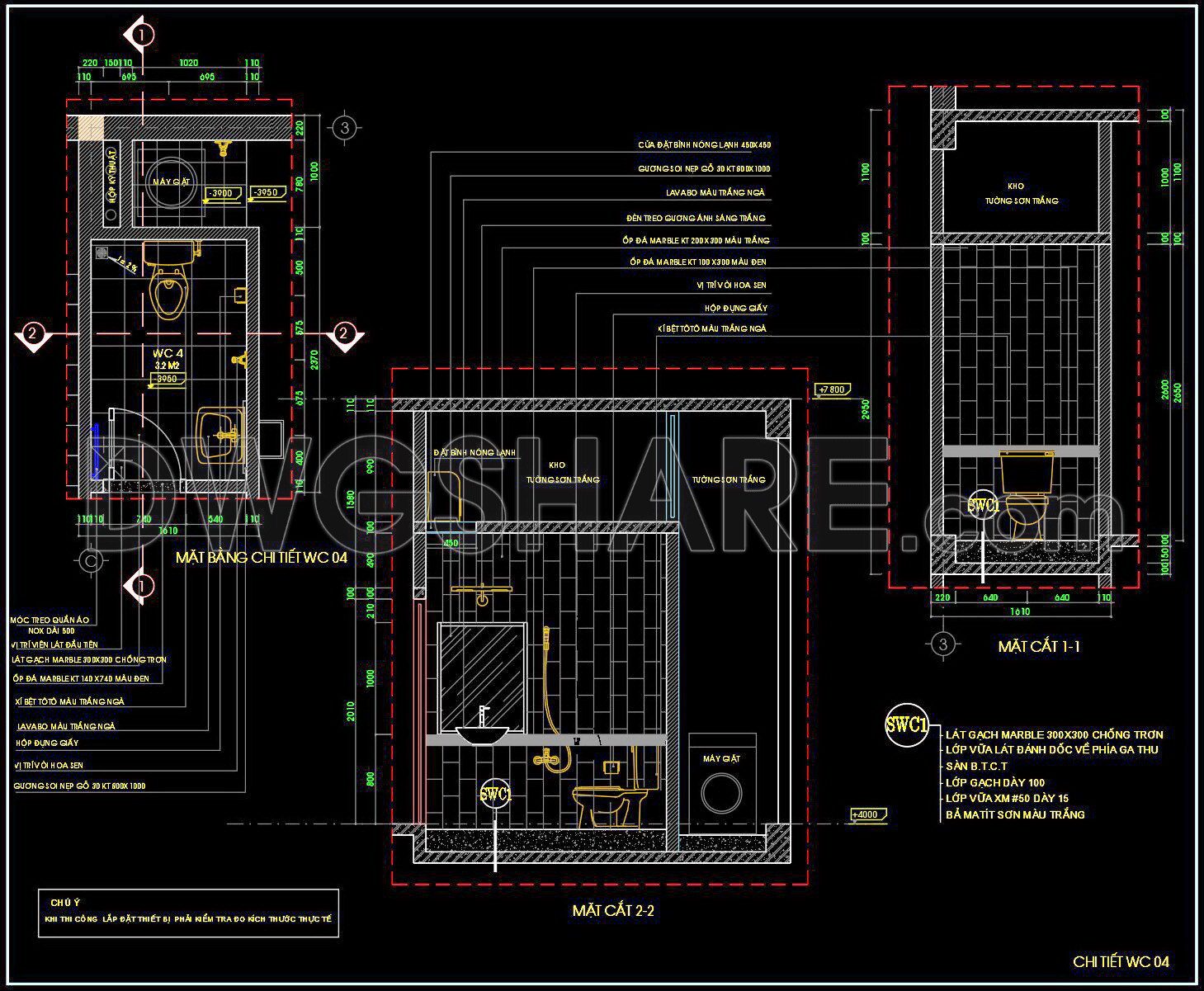
This CAD drawing set provides detailed architectural information for four bathrooms (WC 01, 02, 03, 04). Each room includes a Detailed Plan View, showing layout, dimensions, and sanitary fixture placement. Accompanying Sections (1-1, 2-2, and 1-2) provide information on heights, floor layer construction (anti-slip tiles, mortar, waterproofing), wall cladding materials (tiles, marble), mirrors, and accessory locations. The drawings also specify finishing materials and dimensions for each item, providing detailed support for design and construction.
Click here to view and download free CAD drawings of detailed bathroom designs
379. Free Download Detailed Residential Bathroom CAD Drawings
You can also find a wider selection of free Cad Blocks and DWG models available for download here: Free CAD Blocks download
- File format: .DWG
- Size: 308 KB
- Source: dwgshare.com
- AutoCAD platform 2018 and later versions. For downloading files there is no need to go through the registration process
Advertisements