394. Free Download detailed CAD drawings of townhouse stairs
Advertisements


394. Free Download detailed CAD drawings of townhouse stairs
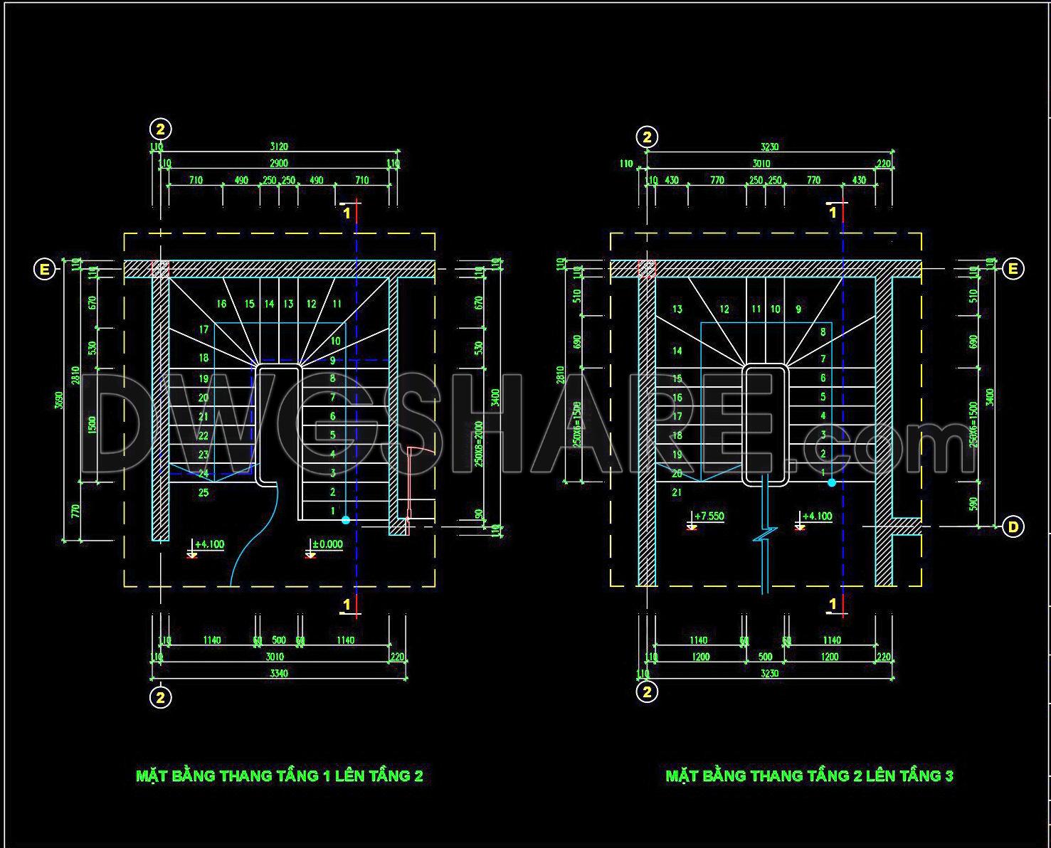
Explore our detailed CAD drawings of townhouse stairs, a valuable asset for architects and construction professionals alike. These drawings, ready for free download, include comprehensive details that are indispensable in the planning and implementation of townhouse designs.
The primary focus is on architectural drawings, featuring precise floor plans, sections, and detailed construction elements. These CAD files provide a clear visual of the stair layout from one floor to the next, emphasizing essential components such as:
Functional floor plan layout
Detailed sections with precise dimensions
Construction details for accurate build execution
Grid lines, dimensions, and level markers for clarity
Architects will find these drawings exceptionally useful during the design development phase. They offer intricate details necessary for coordinating between multiple design elements, ensuring that the final build is both functional and aesthetically pleasing. The floor plans and sections serve as a blueprint for how each component fits within the larger townhouse framework, providing direction for both design and execution.
These DWG files are essential for interior designers focusing on technical details. The precision in dimensions and detailing means they can confidently specify materials and finishes, optimize space, and ensure seamless integration with other architectural features.
For construction teams, these drawings serve as critical references. The level markers and dimensions present in the sections help ensure that the staircase is constructed to the exact specifications needed for safety and design integrity. The detailed plans foster improved coordination on-site, leading to reduced errors and optimized costs—a crucial aspect of construction management.
The advantage of these CAD drawings lies in their high technical accuracy and flexibility. Easily modifiable in AutoCAD, these files can be reused and adapted for various projects, facilitating better coordination between design and construction teams and minimizing the potential for costly mistakes.
Available for free download, these CAD drawings are an excellent resource for design reference, study and research, or use as a groundwork for developing advanced technical drawings.
By incorporating these detailed CAD drawings of townhouse stairs into your workflow, you’ll enhance the effectiveness and efficiency of your architectural or construction projects, adding significant value to any design initiative.
I also recommend downloading other Stairs CAD drawings for your project reference.
- File format: .DWG
- Size: 142 KB
- Source: DWGshare
- AutoCAD platform 2018 and later versions. For downloading files there is no need to go through the registration process
Advertisements