812. Free CAD Drawings of Rolling Shutter Doors, Aluminum Doors, and Steel Doors
Advertisements


812. Free CAD Drawings of Rolling Shutter Doors, Aluminum Doors, and Steel Doors
The CAD drawings provided offer a comprehensive overview of rolling shutter doors, aluminum doors, and steel doors, vital components in architectural design and construction. These architectural detail drawings include multiple perspectives, highlighting essential features and functionalities that are crucial for architects, interior designers, and construction teams.
The first set of drawings focuses on rolling shutter doors, showcasing essential elements such as the functional floor plan layout, elevations and sections, and construction detail drawings. These drawings illustrate the rolling mechanism, track placement, and dimensions, which are critical for ensuring smooth operation and integration into building facades. The presence of grid lines, dimensions, and level markers ensures precision, making these drawings ideal for accurate installation and construction practices.
Next, the aluminum doors are featured with extensive detail in the drawings, providing clear guidance on the framing, panel placements, and section cuts. For architects and interior designers, these drawings are invaluable during design development and technical detailing stages. The drawings help ensure that the doors meet aesthetic requirements while maintaining structural integrity. Detailed annotations and level markers demonstrate how these doors can be custom-sized and integrated into various architectural styles.
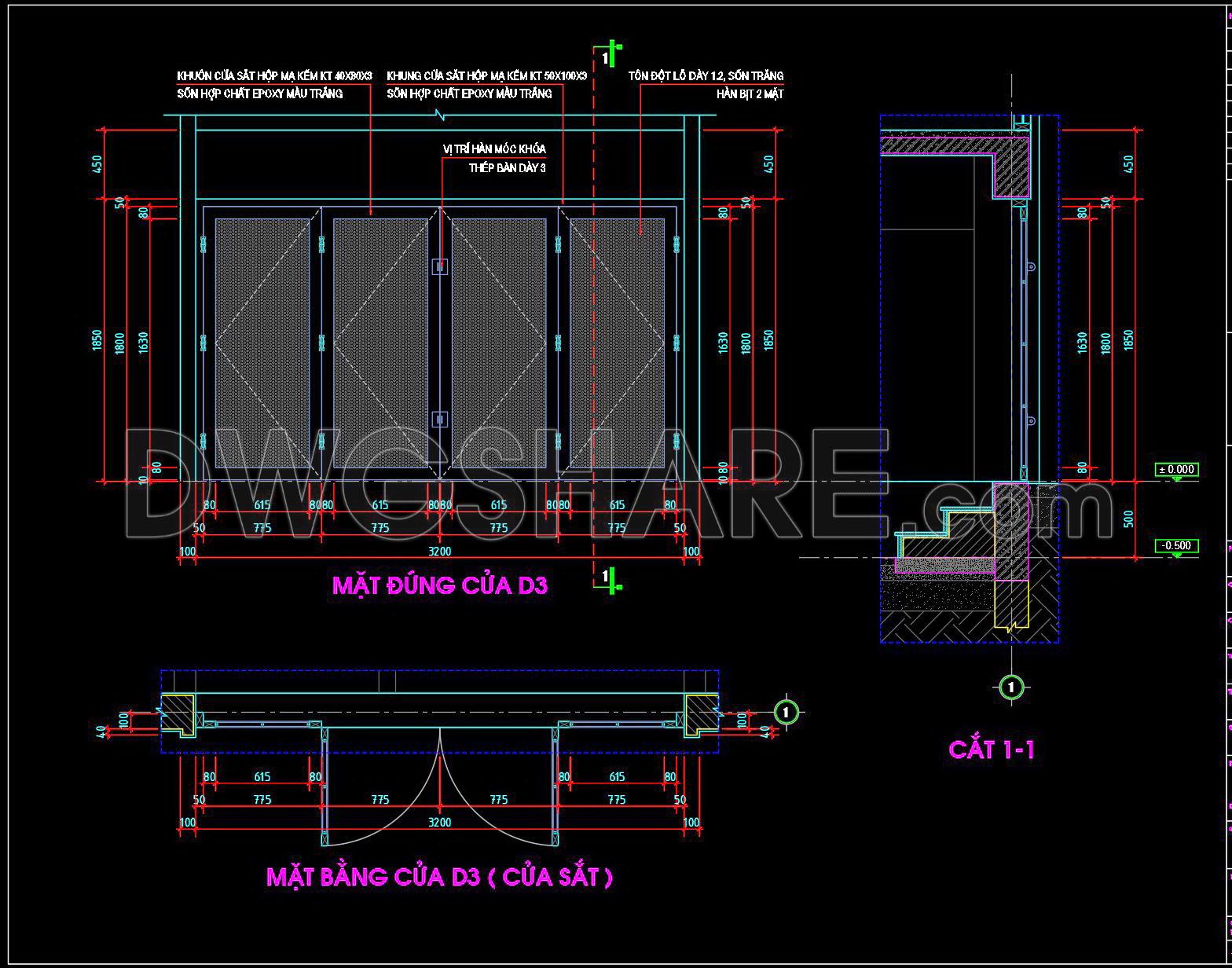
Finally, the steel doors are presented with a focus on durability and robustness. This set of drawings emphasizes the door’s material thickness, reinforcement positions, and lock mechanisms, all of which are crucial for ensuring security and functionality. These detailed drawings allow construction teams to follow precise specifications, leading to reduced errors and optimized costs. By providing clear, dimension-specific guidance, these drawings contribute to efficient material usage and precise fabrication processes.
These CAD drawings are not only technically accurate but are also designed for easy modification and reuse in AutoCAD, making them a versatile tool for professionals in the design and construction fields. Architects can use these as reference points during the design development phase, ensuring that their concepts align with technical realities. Interior designers can rely on these drawings to plan interior layouts and placements without compromising on technical feasibility. Similarly, construction teams benefit from these precise drawings for coordinating construction activities and streamlining installation processes.
By offering these drawings for free, the CAD DWG files provide an excellent resource for design reference, study, and research. They serve as a foundational base for developing further technical drawing sets, catering to various professional needs in architecture and construction. The open availability of these files ensures that all professionals, regardless of their financial resources, can access high-quality technical information for their projects.
I also recommend downloading other Door CAD drawings for your project reference.
- File format: .DWG
- Size: 105 KB
- Source: DWGshare
- AutoCAD platform 2018 and later versions. For downloading files there is no need to go through the registration process
Advertisements