133. CAD drawings detailing the design of water supply and drainage systems for a 4-story townhouse
Advertisements






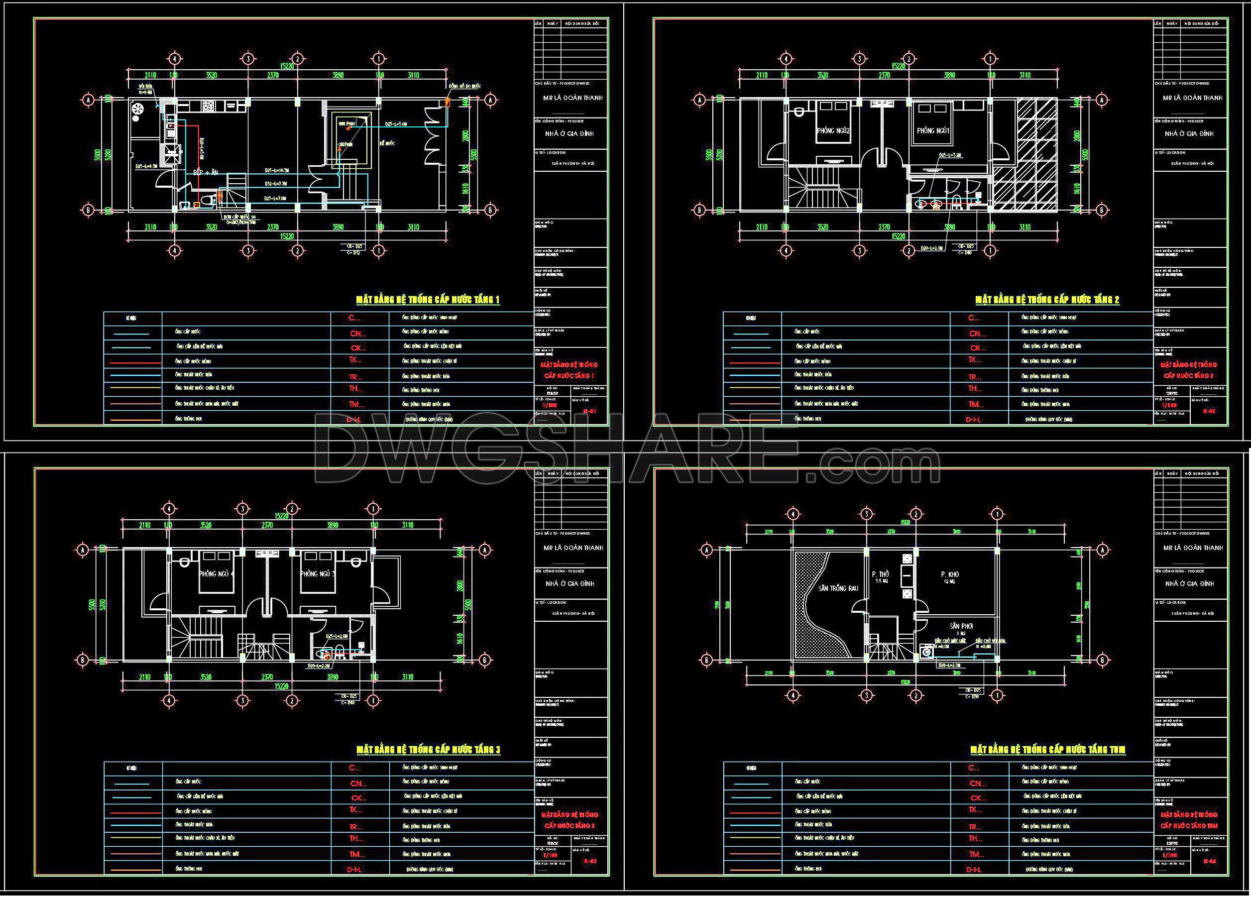
133. CAD drawings detailing the design of water supply and drainage systems for a 4-story townhouse
The CAD drawings detailing the design of water supply and drainage systems for a 4-story townhouse serve as a crucial resource for architects and builders. These comprehensive blueprints include multiple views that effectively outline the intricate systems necessary for seamless water management in modern residential constructions. Key components illustrated in these files include installations for toilets, sinks, and showers, as well as detailed layouts for drainage and venting.
These drawings, available in high-quality DWG format, are meticulously dimensioned to ensure precision in construction projects. By integrating these detailed plans, professionals can enhance the accuracy of their architectural designs, facilitating smooth editing and collaboration between project teams. This precision ultimately leads to cost optimization by minimizing errors and revisions during the construction process.
Available for free download, these CAD files are a valuable asset for those involved in architecture, interior design, and construction, providing a reliable reference for effectively managing water systems in multi-story residential builds.
I also recommend downloading other Cad Details CAD drawings for your project reference.
- File format: .DWG
- Size: 501 KB
- Source: DWGshare
- AutoCAD platform 2018 and later versions. For downloading files there is no need to go through the registration process
Advertisements