172. Villa Garden Design – Complete Architectural Drawings
Advertisements
The Villa Garden Design project is a premium architectural work in Hanoi, combining modern living spaces with traditional garden landscapes. The full set of drawings includes: garden floor plan, detailed wall sections (A, B, C, D), technical cross‑sections, and both main and auxiliary gate designs. This comprehensive design package serves construction, supervision, and finishing purposes.
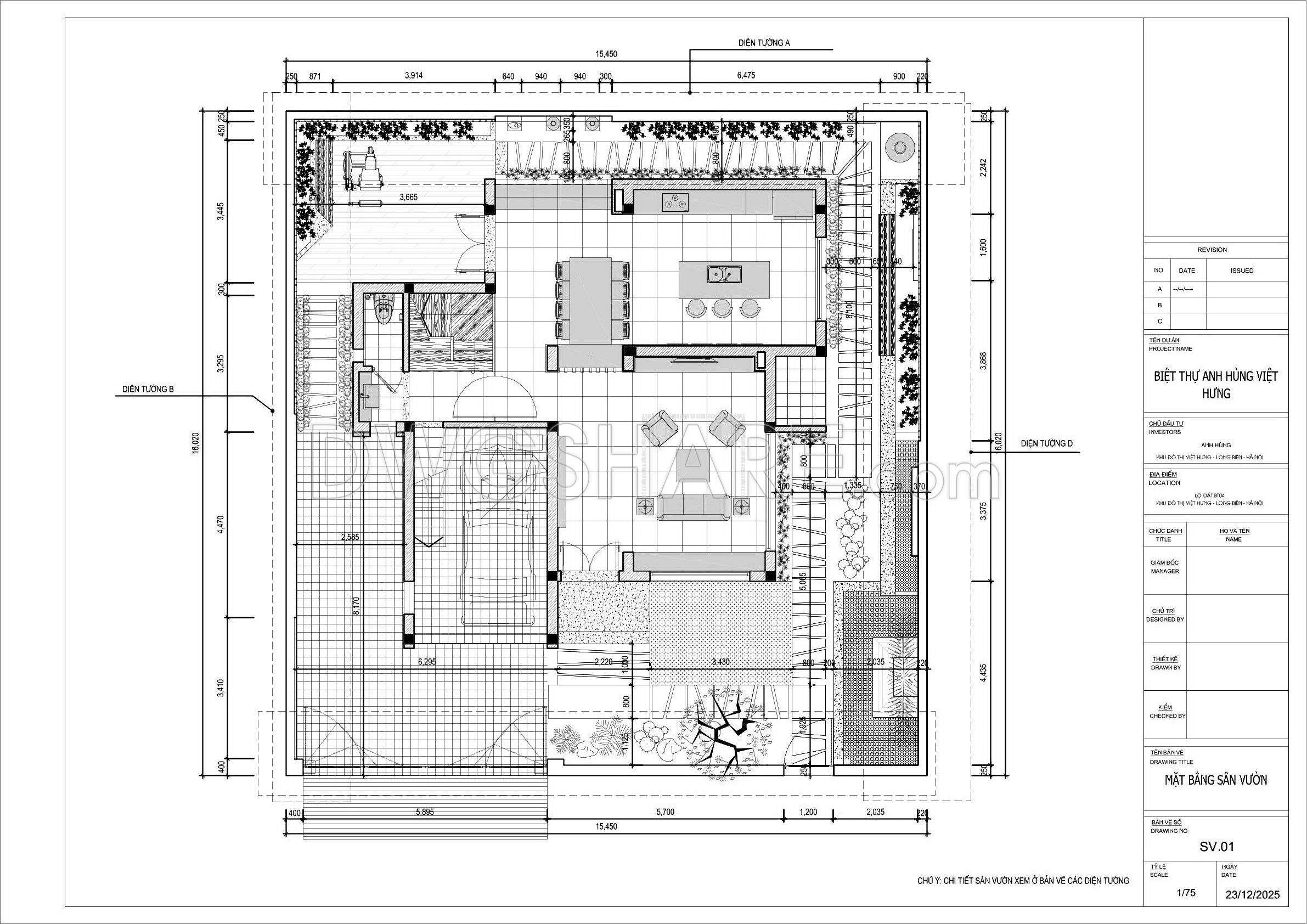
Garden Floor Plan
- Functional spaces: outdoor dining area, relaxation seating, stone‑paved pathways, water features.
- Greenery & landscaping: bamboo clusters, multicolored guava trees, banana plants, small flowering shrubs, climbing plants.
- Materials: Thanh Hoa green stone, white gravel, Biowood flooring, Lao ironwood cladding.
- Drawing scale: 1/75, ensuring precise construction execution.

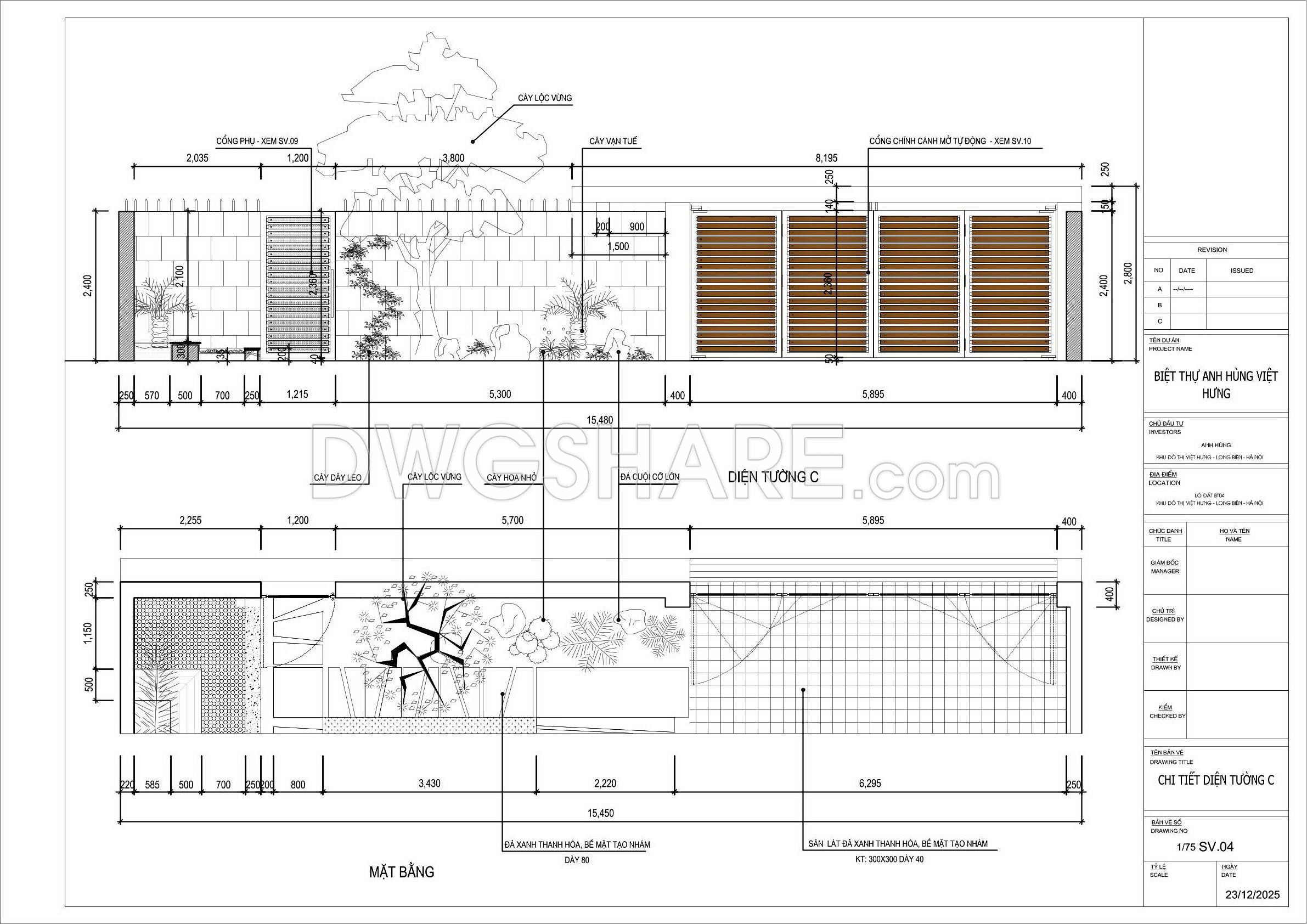
Detailed Wall Sections (A, B, C, D)
Wall A
- Biowood cladding, Inax tiles, white painted walls.
- Decorative features: coconut‑shell water jar, bamboo clusters, relief sculpture.
Wall B
- Combination of Biowood, Inax tiles, Thanh Hoa green stone.
- Multi‑functional outdoor activity space.
Wall C
- Greenery: Barringtonia, cycads, climbing plants.
- Flooring: Thanh Hoa green stone, large cobblestones.
Wall D
- Decorative pedestals with ceramic vases, bamboo strips.
- Seating area, multi‑purpose workout floor, water feature.


Technical Cross‑Sections (1‑1, 2‑2, 3‑3, 4‑4, 5‑5, 6‑6)
- Show concrete foundations, planting soil layers, drainage system (D60).
- Finishing materials: Biowood flooring, Inax tiles, granite, small and large pebbles.
- Ensure quality control from foundation to landscape completion.
Gate Designs
Main Gate
- Steel frame 40×80 mm, black powder‑coated.
- Guiding rail system with automatic motor.
- Dimensions: width 6.295m, height 2.360m.
Auxiliary Gate
- Steel frame 40×80 mm, African Lim wood panels.
- Decorative details: copper fittings, flat steel 5×30 mm.
- Compact size, suitable for secondary access with aesthetic appeal.
Value of the Drawing Set
- Aesthetic: harmonizes modern architecture with lush greenery.
- Functional: optimizes living spaces, from garden to workout areas.
- Technical: detailed drawings with floor plans, sections, and elevations for accurate construction.
- Sustainable: natural materials, eco‑friendly, easy maintenance.






172. Villa Garden Design – Complete Architectural Drawings
Conclusion
The Villa Garden Design drawings are not only technical documents but also a testament to thoughtful investment in architecture and landscaping. With a balance of functionality, aesthetics, and sustainability, this design represents a model for modern villa trends in Vietnam.
I also recommend downloading other Urban, Landscaping CAD drawings for your project reference.
- File format: .DWG
- Size: 6.7 MB
- Source: DWGshare
- AutoCAD platform 2018 and later versions. For downloading files there is no need to go through the registration process
Advertisements
Hello requires password
Pass is dwgshare.com