32. Complete Interior CAD Drawing Set – Detailed Furniture Design & Construction Plans
Advertisements




32. Complete Interior CAD Drawing Set – Detailed Furniture Design & Construction Plans
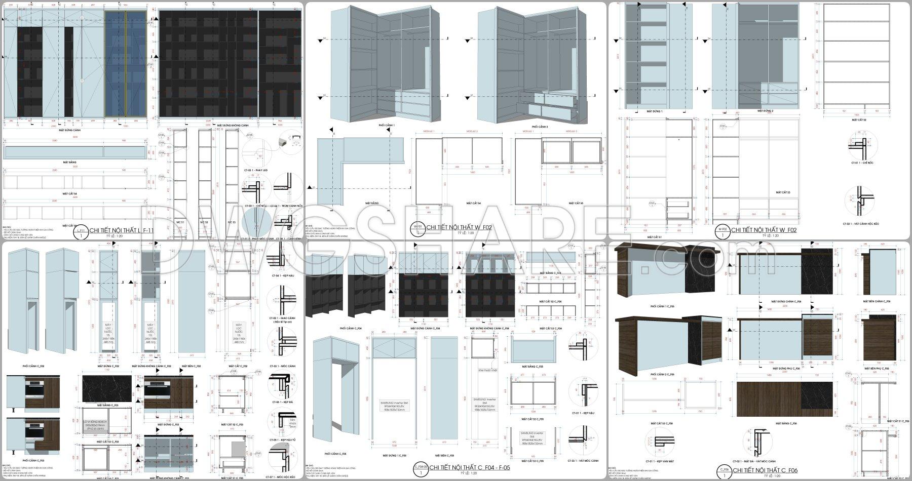
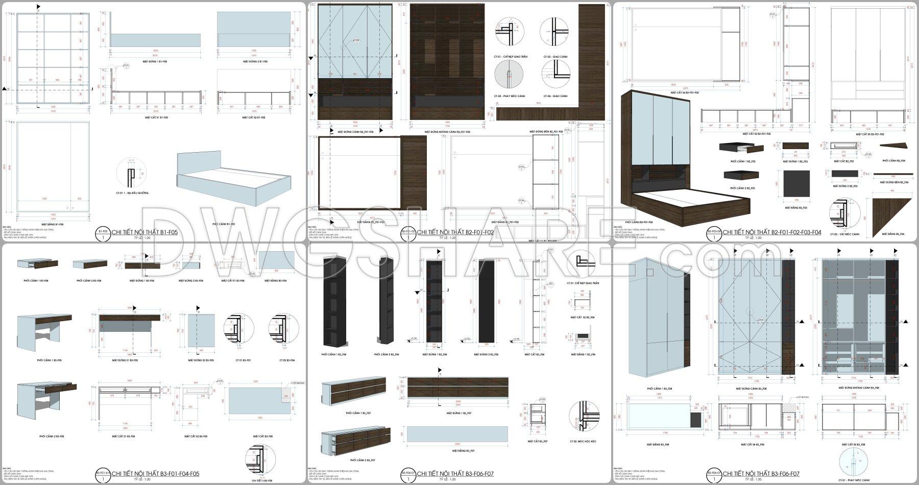
Looking at this drawing set as a whole, it’s clear that this is a fairly complete interior design documentation package, mainly focused on cabinetry systems and built-in furniture components within a residential space. The drawings are organized by codes such as F, B, W…, each representing specific categories like wardrobes, display cabinets, shelving, desks, or kitchen units.
A noticeable feature is the dominance of full-height cabinetry. Many modules are divided into swing doors or glass doors, with internal shelving arranged at consistent intervals. Several details clearly illustrate the cabinet structure, including back panels, side panels, shelves, and bases, accompanied by sectional drawings to clarify connections. Some drawings show the use of glass fronts combined with aluminum or wooden frames, while lower sections are enclosed with solid panels.
Technical details are presented quite clearly. Elevations, plans, and sections are fully dimensioned, making it easier for construction teams to understand real-world proportions. Hardware details such as hinges, drawer runners, and handle positions are enlarged separately, indicating that the documentation goes beyond concept and is ready for practical execution.
Material coordination is also evident. The renderings suggest a combination of dark wood finishes with lighter materials such as glass or laminate. In some areas, accent colors (like orange compartments) are introduced, adding visual interest rather than purely focusing on storage.
In the kitchen drawings (C07–C08), the layout follows a familiar linear configuration with upper and lower cabinets. The sink and cooktop are aligned on the same countertop, while the base cabinets are divided functionally. Section drawings show reasonable countertop heights and spacing between upper and lower cabinets, suitable for daily use.
Additional standalone furniture includes dining tables, work desks, and beds. The bed design is simple and boxy, emphasizing structure over ornamentation. The desks follow a modern approach, combining solid panels with open compartments for practicality.
Overall, this drawing set prioritizes buildability over visual presentation. The level of detailing is sufficient for fabrication, with clear dimensions and practical construction logic. For anyone looking for a highly applicable interior CAD documentation set, this is a valuable reference.
I also recommend downloading other Cad Details CAD drawings for your project reference.
- File format: .Sketchup
- Size: 41.8 MB
- Source: DWGshare
- Sketchup platform 2018 and later versions. For downloading files there is no need to go through the registration process
Advertisements