769. Modern 3-Story Townhouse Design Drawings: Curved Architecture & Structure
Advertisements

This is a comprehensive set of technical drawings for a modern three-story townhouse (ground floor, 1st floor, 2nd floor, and terrace/roof). The design features a contemporary façade with notable soft, curved details and integrated green spaces on the balconies and rooftop.
Technical Drawing Overview
This drawing set includes all necessary components for the construction of a residential project. It is presented in Vietnamese, utilizing standard technical dimensions and symbols.
Key Component Details
1. Architecture
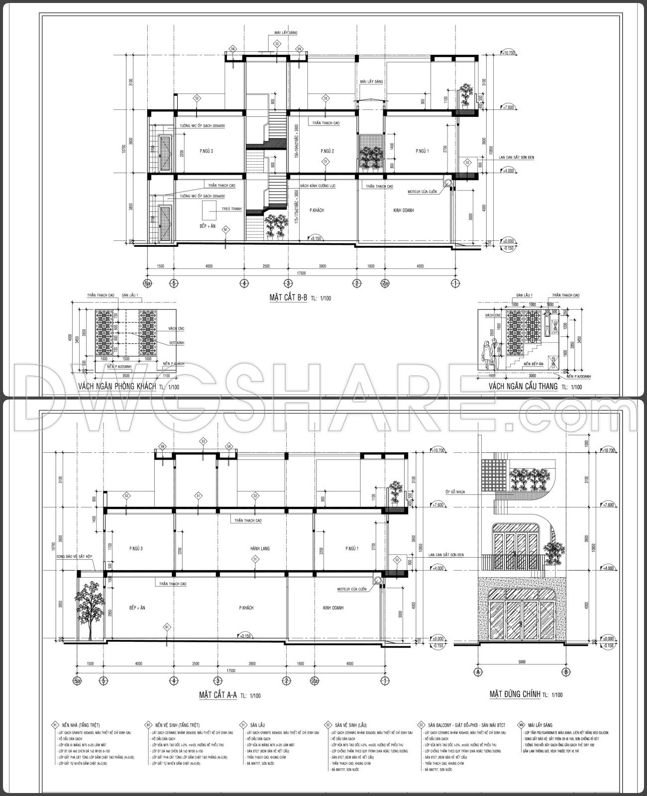
- Floor Plans: Clearly show the layout of all floors.
- Ground Floor (Tầng Trệt): Includes a garage/commercial space (labeled KINH DOANH), a living room (KHÁCH), a dining/kitchen area (ĂN, BẾP), and a restroom (WC).
- 1st Floor (Lầu 1): Features three bedrooms (PN GÚ 1, PN GÚ 2, PN GÚ 3) with private or shared bathrooms.
- 2nd Floor (Lầu 2): Appears to contain bedrooms/a worship room and a rooftop terrace.
- Terrace/Roof (Sân Thượng/Mái): Includes front and rear terraces (SÂN THƯỢNG), with a section designated for a drying area and another for planting/ventilation (MÁI LÀM THÔNG GIÓ/TRỒNG CÂY).
- Sections and Elevations: Detail the height, slope, staircase location, and basic interior features. Sections AA and BB illustrate the vertical spatial relationships and clear ceiling heights. The main elevation corresponds to the 3D rendering.
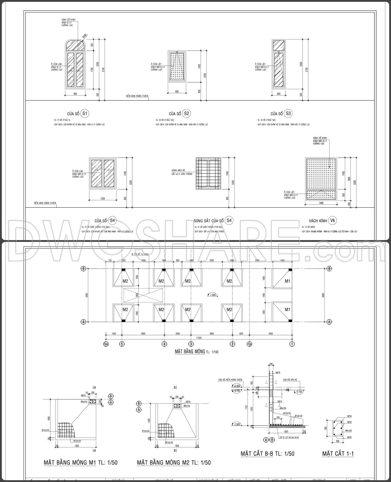
- Door and Window Details: Include various types of windows (S), doors (D), and roller doors (C), clearly specifying dimensions and materials (tempered glass, aluminum/steel).



2. Structure
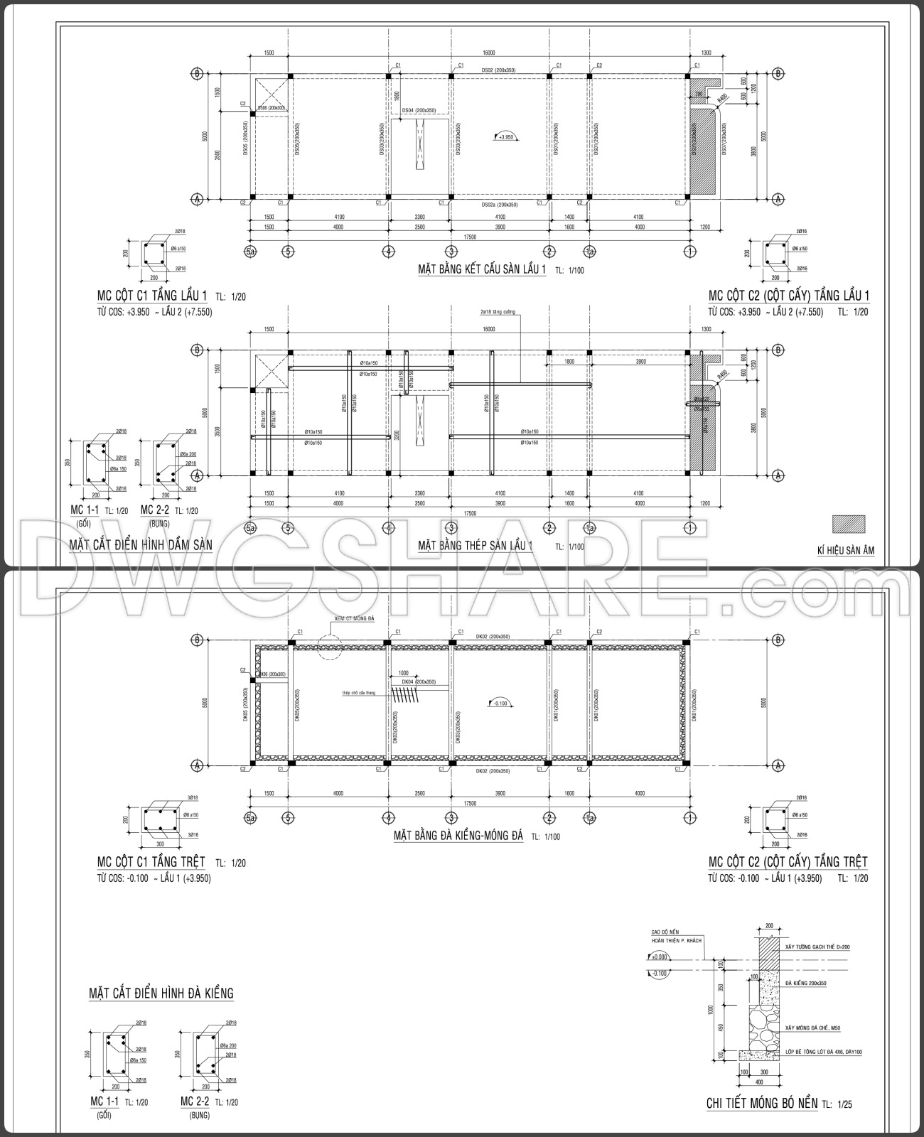
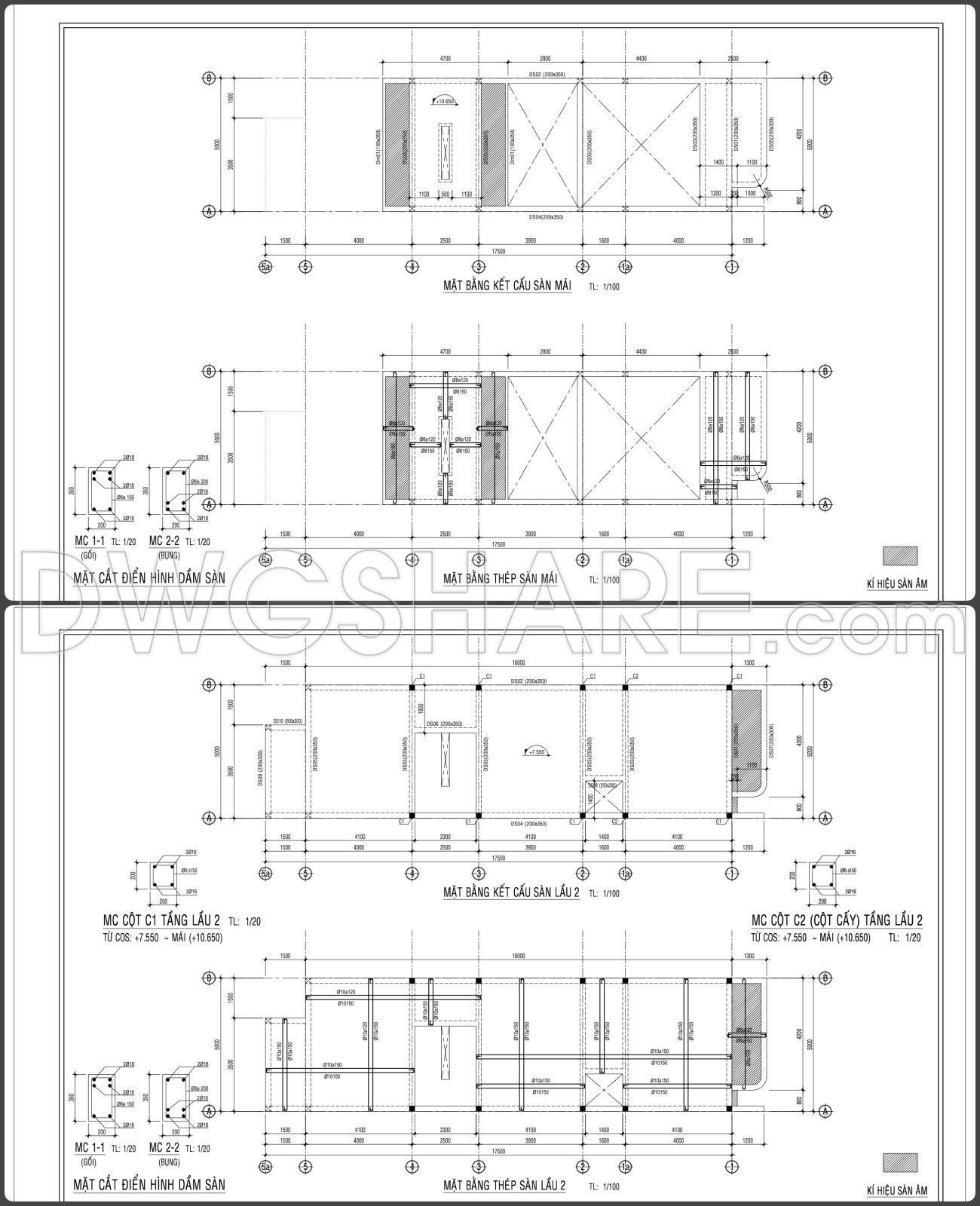
Foundation and Floor Components:
- The structure uses isolated footings (M1, M2) or strip footings.
- Drawings show detailed slab reinforcement plans and column sections (C1, C2) for each floor. All steel parameters (e.g., ϕ16, ϕ18) and beam/slab dimensions are fully noted, ensuring the load-bearing capacity of the building.



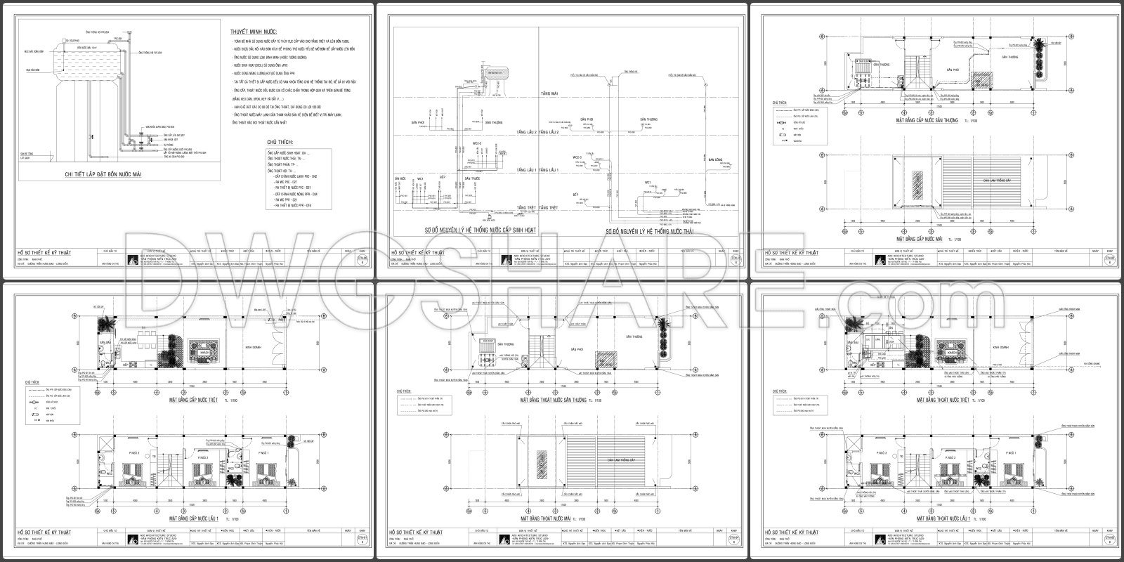
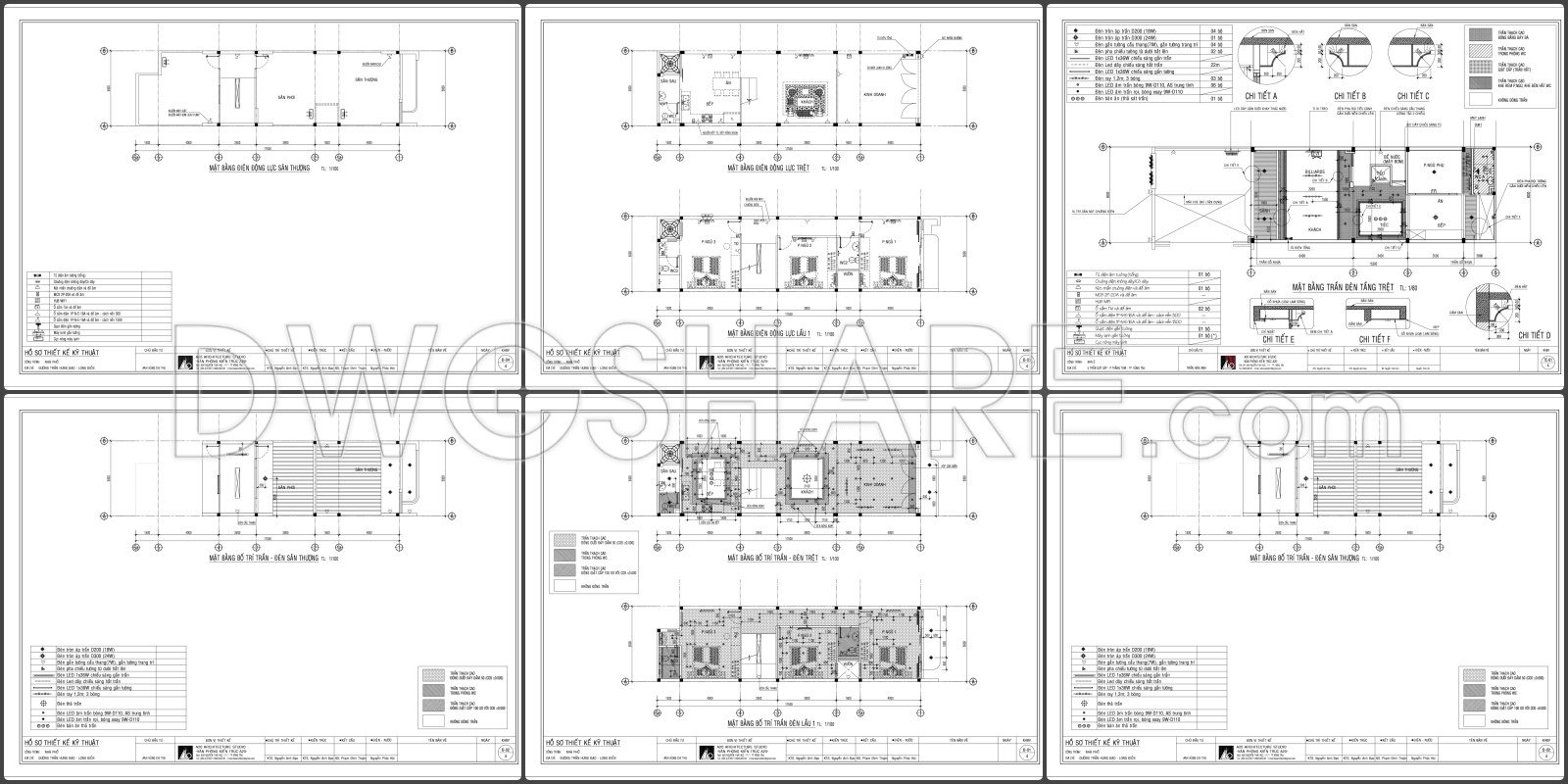
3. Mechanical & Electrical Systems (MEP)
- Plumbing System (Water Supply/Drainage): Includes the schematic diagram, location of water tanks, supply pipes (hot/cold), and drainage pipes for WCs, floors, and the roof.
- Electrical System: Covers the layout of lighting, sockets, switches, and the electrical panel schematic.
Overall, this is a complete design package, providing all necessary technical information—from architecture and structure to M&E systems—required for permitting and construction.


769. Modern 3-Story Townhouse Design Drawings: Curved Architecture & Structure
I also recommend downloading other Houses CAD drawings for your project reference.
- File format: .DWG
- Size: 3.24 MB
- Source: PhucHaiCo.Ltd
- AutoCAD platform 2018 and later versions. For downloading files there is no need to go through the registration process
Advertisements