875. Free CAD Drawing of a 2-Storey Villa – Complete Architectural Plans
Advertisements

875. Free CAD Drawing of a 2-Storey Villa – Complete Architectural Plans
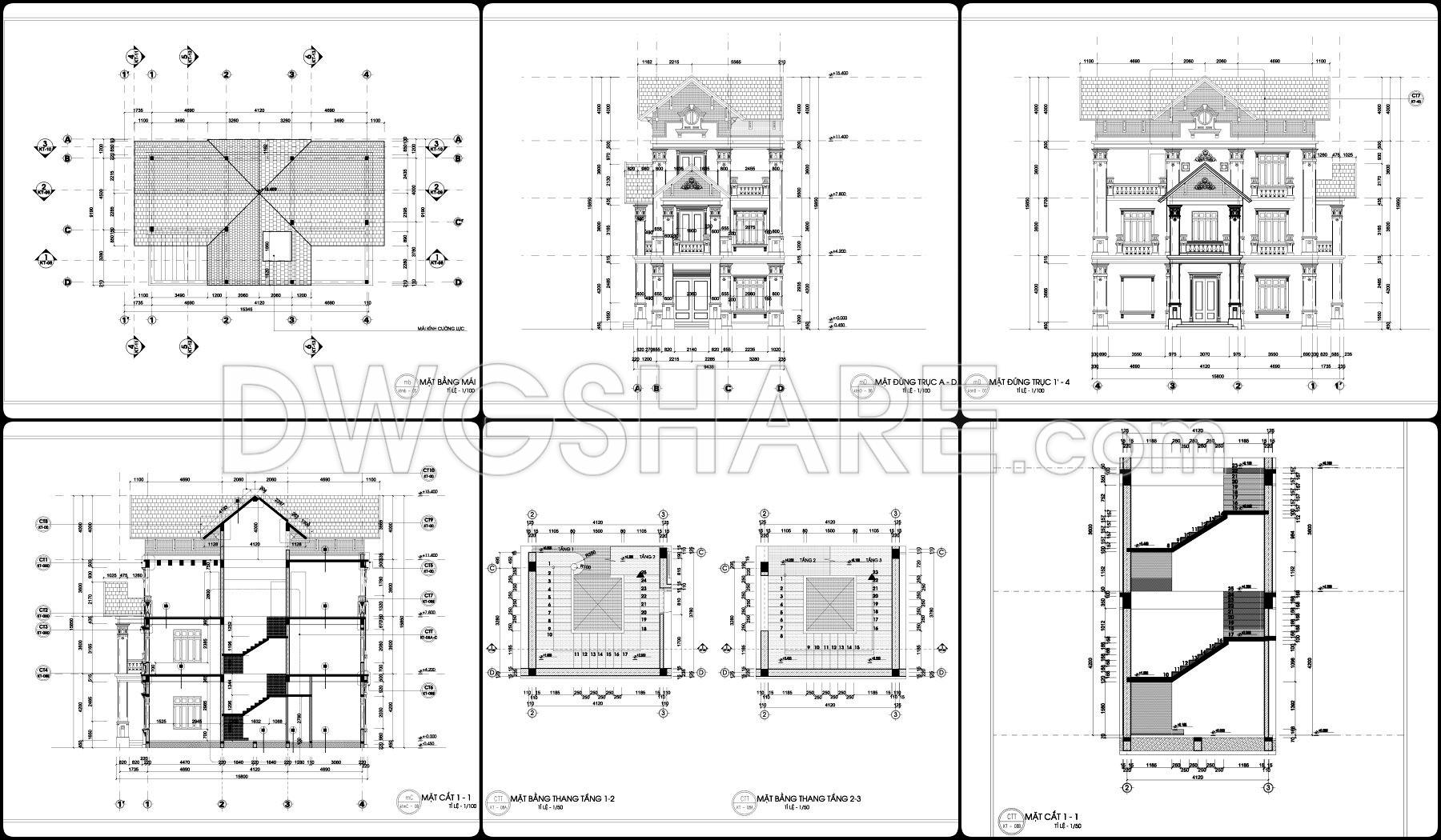
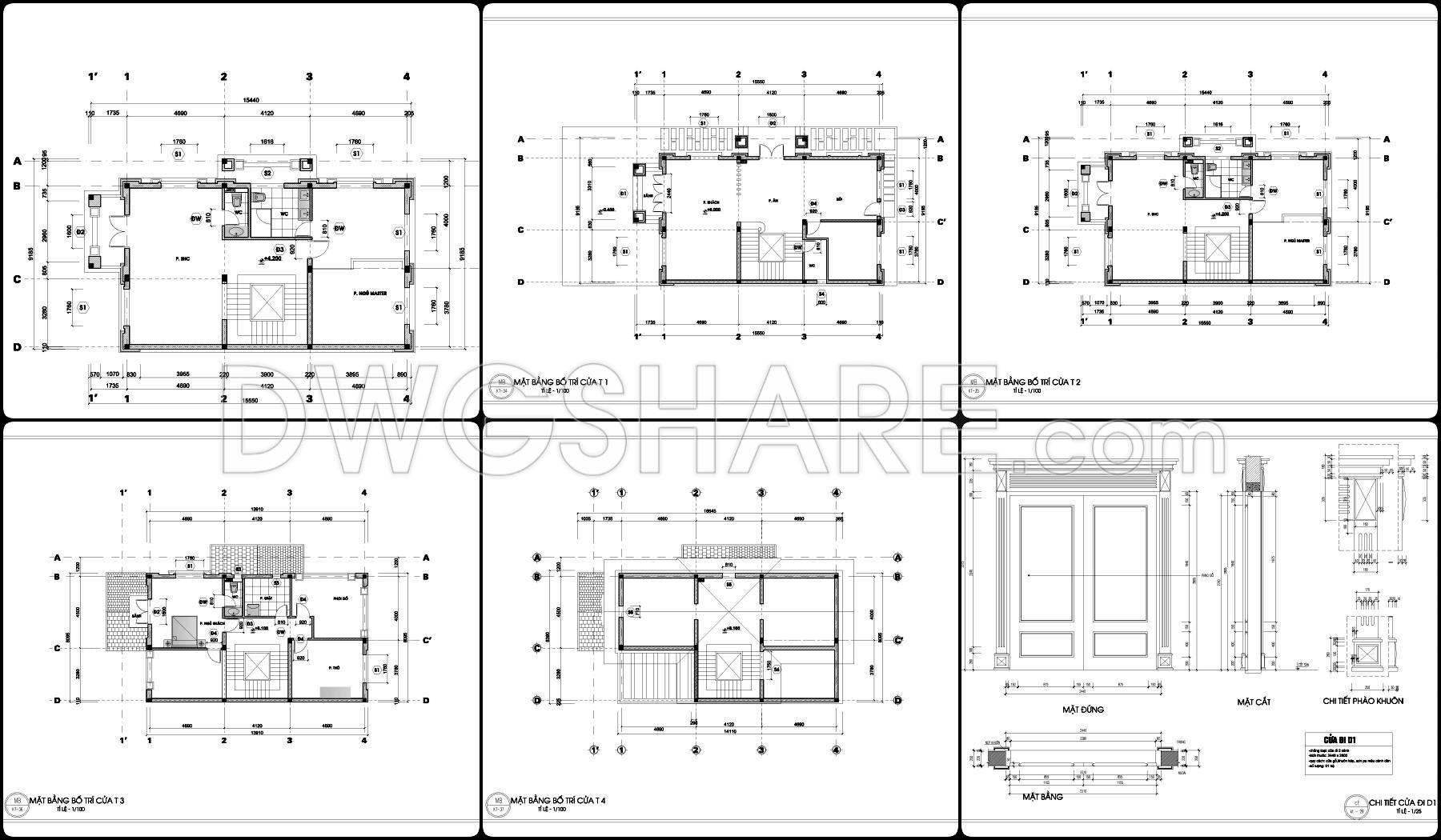
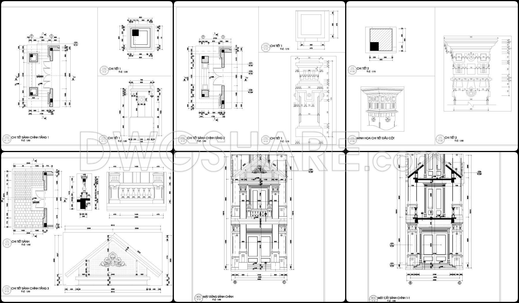
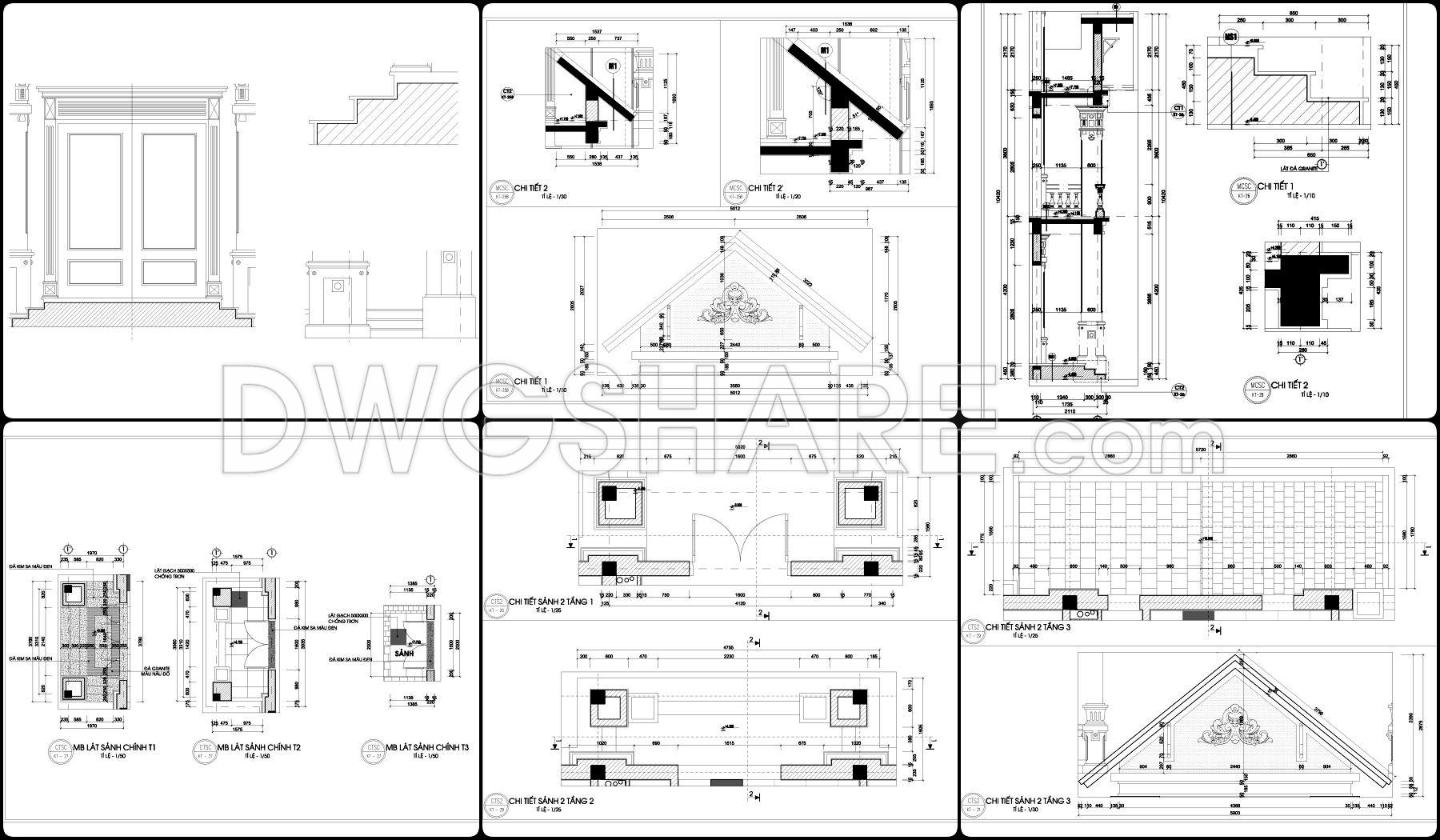
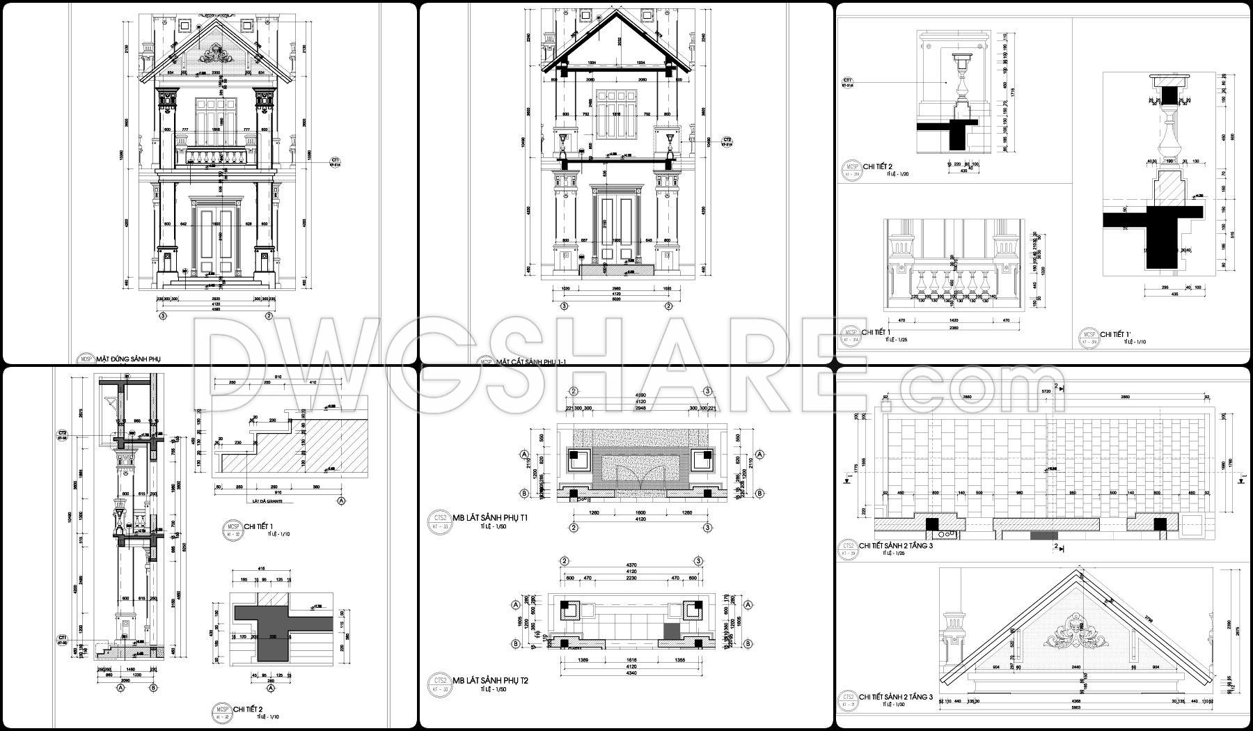
This drawing set presents a fairly clear design of a 2-story neoclassical villa, with a balanced layout that feels practical for construction. The floor plans are organized around a clean grid system, making it easy to understand wall positions, structural elements, and spatial relationships. The central area is dedicated to the main hall and staircase, acting as the core connection between spaces, while surrounding rooms are arranged to allow for natural light and ventilation.
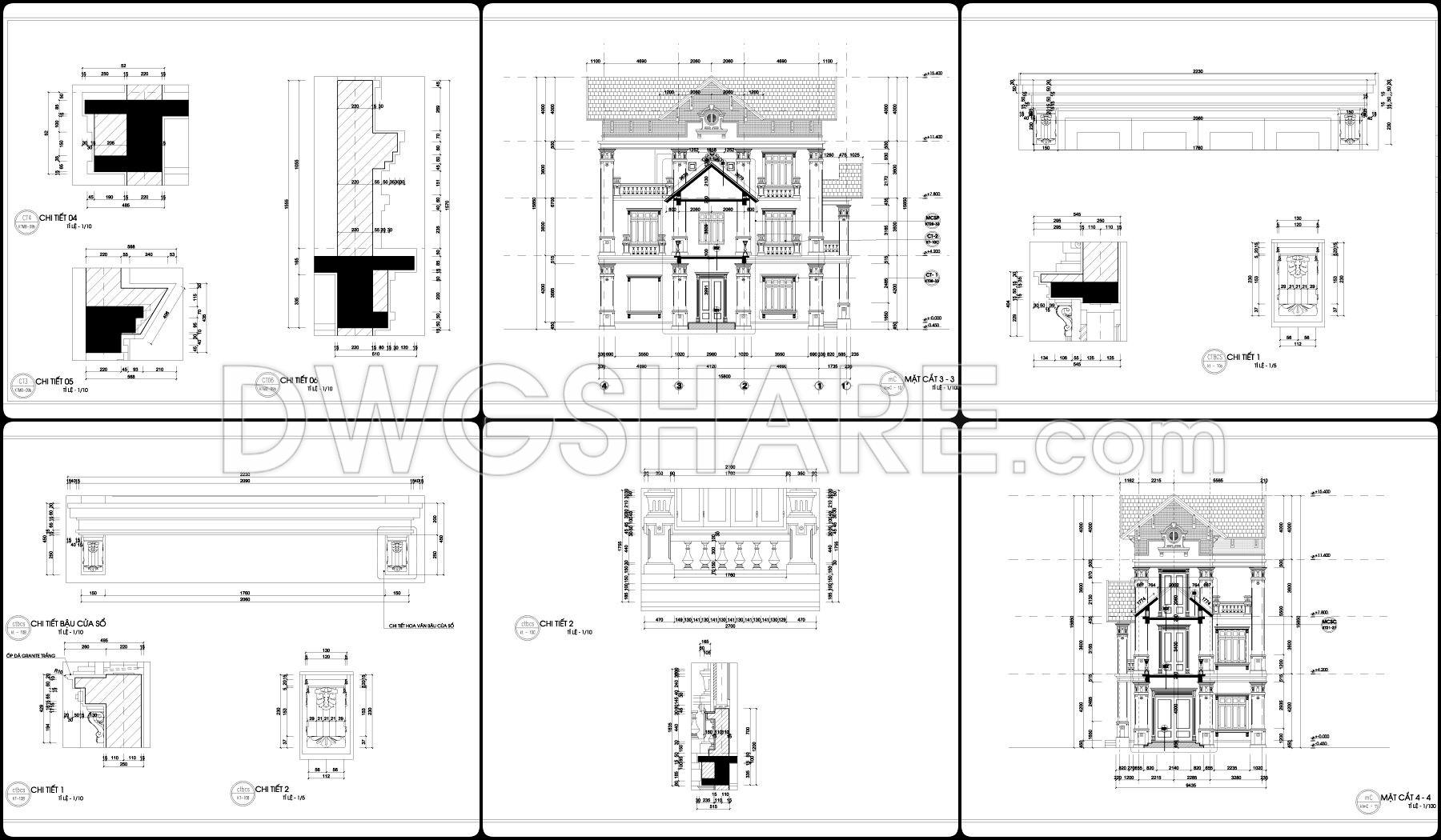
The front elevation emphasizes symmetry, featuring classical-inspired details like columns, moldings, and balconies without feeling overly decorative. The proportions between the roof, openings, and ornamental elements are handled quite well. Overall, this is a solid reference set for anyone looking for a villa design that is refined yet not overly complex.
I also recommend downloading other Houses CAD drawings for your project reference.
- File format: .DWG
- Size: 652 KB
- Source: DWGshare
- AutoCAD platform 2018 and later versions. For downloading files there is no need to go through the registration process
Above is the CAD floor plan drawing that you can download for free as a reference. To obtain the complete concept design package, please download it using the link provided below.
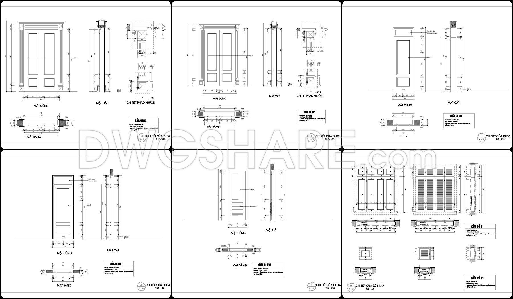
The main categories included in this CAD drawing set are:
- Floor Plan Drawings
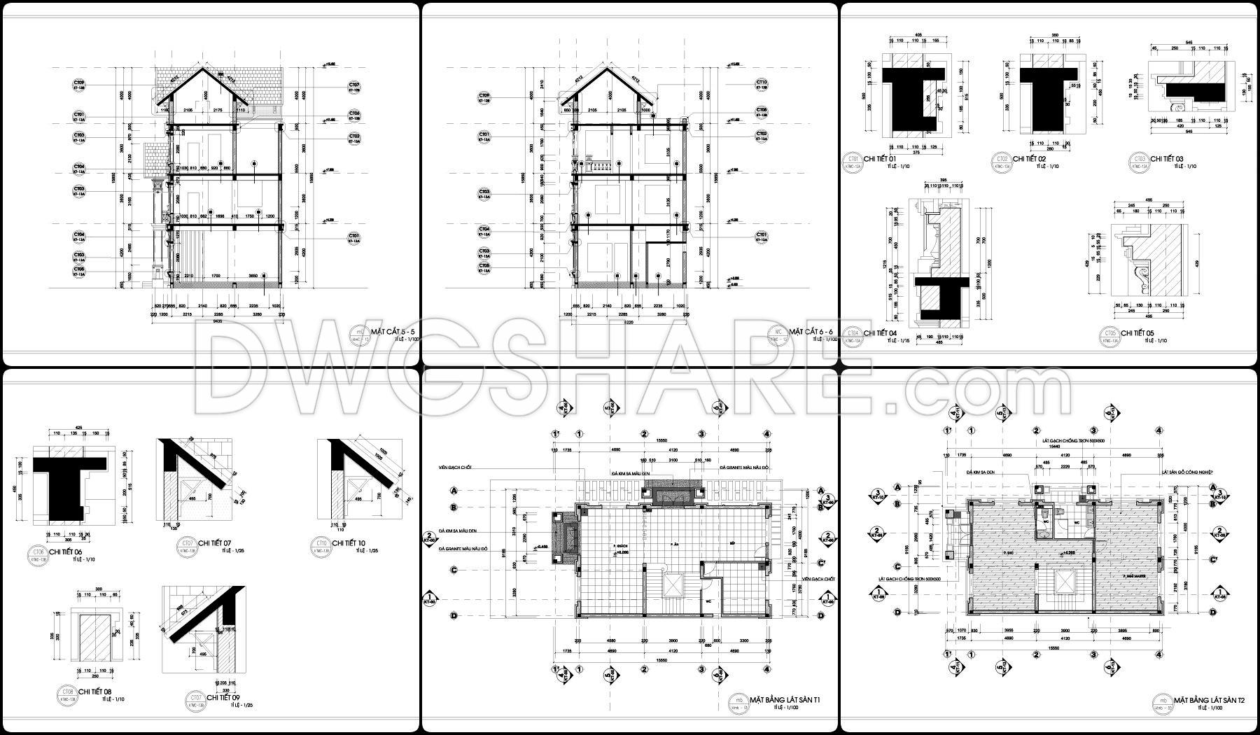
- Elevation Drawings
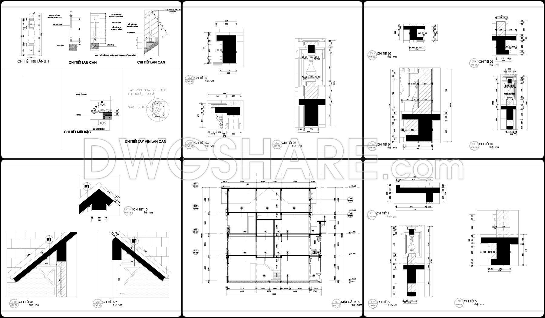
- Section Drawings
- Detailed Architectural Drawings
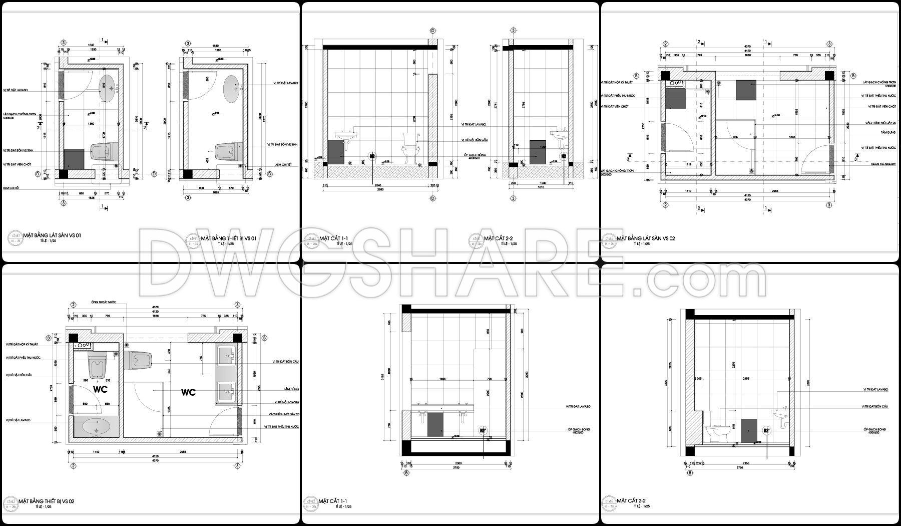
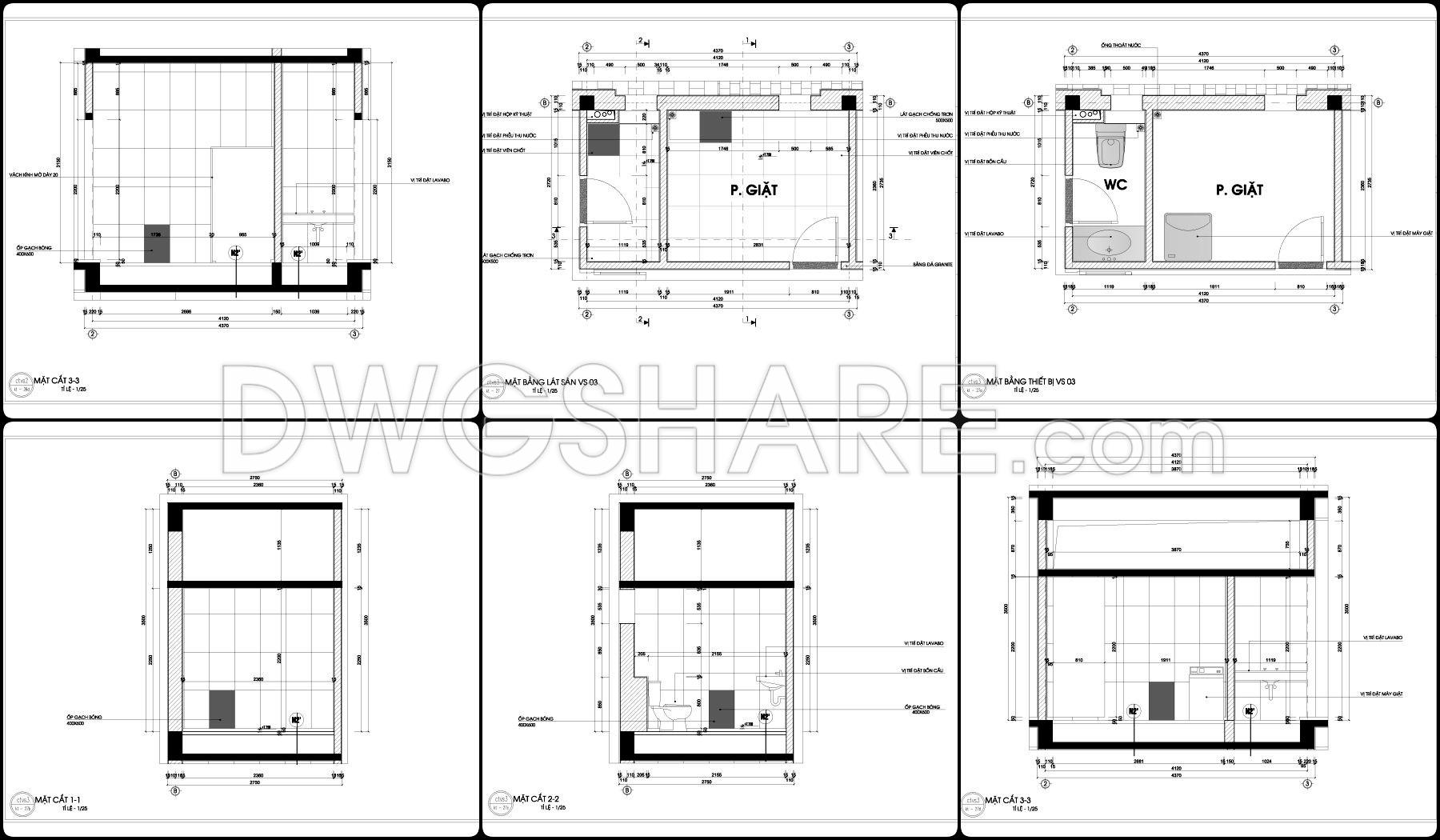
- Detailed Sanitary Drawings
- Detailed Staircase Drawings
- Detailed Elevation Drawings














Advertisements