317. Free Download of Mechanical and Electrical Construction Design Drawings for a 2-Story House
Advertisements






317. Free Download of Mechanical and Electrical Construction Design Drawings for a 2-Story House
Explore a comprehensive set of mechanical and electrical construction design drawings for a sophisticated 2-story house, available for free download. These meticulously crafted CAD DWG files offer an invaluable resource for architects, interior designers, and construction teams, facilitating seamless design development and project execution.
The collection includes essential architectural floor plans, highlighting the functional layout of the house across two stories. These plans provide detailed information on the grid lines, dimensions, and crucial level markers, ensuring precision and clarity in design interpretation. By examining these layouts, architects can effectively develop design concepts, ensuring that space is optimized for both functionality and aesthetic appeal.
Accompanying the floor plans are the building’s elevations and sections, offering side views and longitudinal cuts of the structure. These drawings are indispensable for visualizing the building’s exterior and understanding internal spatial relationships. Construction teams can utilize these sections for accurate reference and alignment during the building process, minimizing errors and streamlining coordination on-site.
The set further includes construction detail drawings which explore specific design elements and materials to be used, ensuring each component is precisely crafted and executed. These details facilitate the work of construction teams and contractors, providing a clear and exact guide to material implementation and construction techniques.
The practical use of these drawings is amplified by their high technical accuracy. They are designed for easy modification and reuse in AutoCAD, a necessity for architects and designers who aim to adapt existing designs to new projects efficiently. This adaptability also ensures improved coordination between different teams, reducing the potential for costly errors and allowing for better project management and cost optimization.
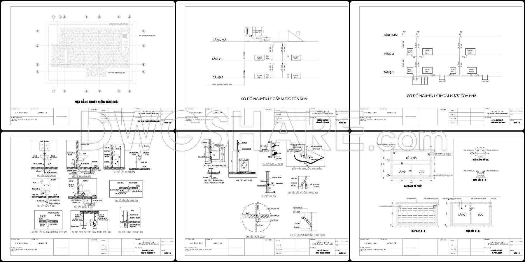
Moreover, the inclusion of the water supply and drainage schematics offers insight into the mechanical systems at play, equipping engineers and technical teams with the data needed to install and maintain these crucial systems correctly.
These CAD files are not just useful for direct application in construction projects but also serve as an excellent study and research tool for students and professionals in the construction domain. They provide a solid base for developing technical drawing skills and understanding how comprehensive design documentation is structured.
With a free download available, these files present an opportunity to enhance your project design reference library, enriching both practical projects and educational endeavors. Dive into the intricate world of architectural design and construction with these expertly crafted plans and unlock new dimensions of design potential today.
I also recommend downloading other Houses CAD drawings for your project reference.
- File format: .DWG
- Size: 5 MB
- Source: DWGshare
- AutoCAD platform 2018 and later versions. For downloading files there is no need to go through the registration process
Advertisements