319. Download free CAD structural drawings for a 8m x 14m reinforced concrete townhouse construction
Advertisements








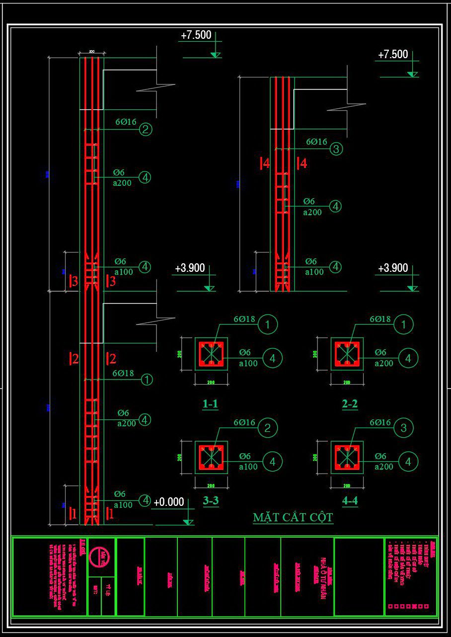
319. Download free CAD structural drawings for a 8m x 14m reinforced concrete townhouse construction
This CAD drawing set presents the detailed structural design for a building, likely a 3-story house. You can download these drawings for free.
The content includes:
- Foundations: Foundation layout plan (DM1, DM2), detailed sections of strip footings, and foundation beam layout, showing dimensions and reinforcement details.
- Frame: Column layout plan and detailed column sections, indicating dimensions, floor elevations, and details of longitudinal and transverse reinforcement. Beam section drawings show detailed reinforcement layouts for main and shear reinforcement for various beam types.
- Slabs: Reinforcement layout plans for the 2nd and 3rd-floor slabs, including top and bottom reinforcement layers and strengthening details.
- Stairs: Structural reinforcement details for stair flights and landings, including plans and sections.
- Septic Tank: Detailed plan and section drawings showing the structure, dimensions, and reinforcement for the tank’s compartments.
All drawings use standard technical scales, symbols, and dimensions, providing necessary information for construction.
Download more free CAD design drawings for reinforced concrete townhouse structures here
- File format: .DWG
- Size: 662 KB
- Source: Collect
- AutoCAD platform 2018 and later versions. For downloading files there is no need to go through the registration process
Advertisements