Advertisements




51. Download the building’s gas distribution network drawing in AutoCAD DWG format
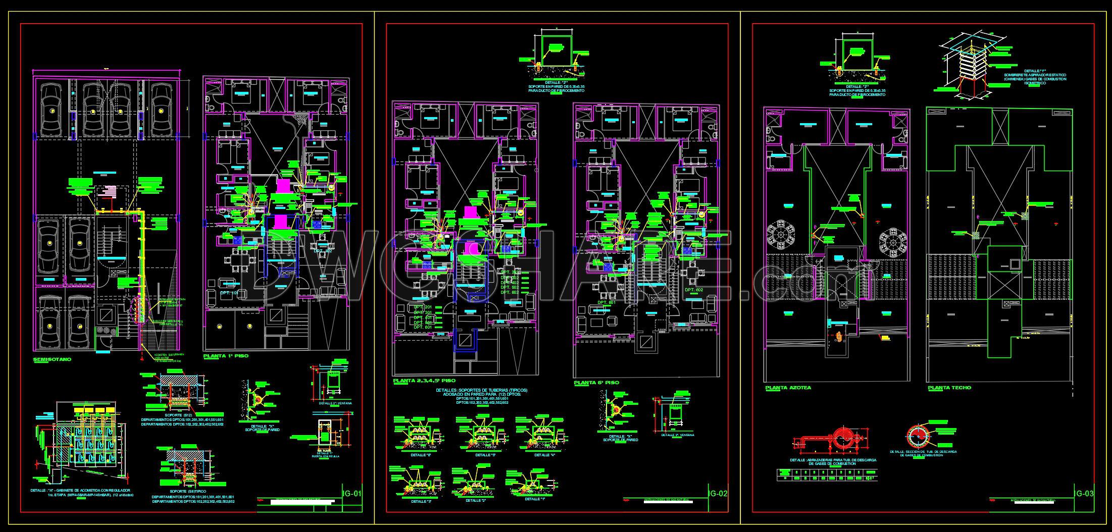
At first glance, this drawing set feels very “engineering-driven” — no unnecessary decoration, no flashy presentation, just solid, practical content. It’s a gas distribution system design for a multi-storey residential building, and you can tell it was developed with real construction in mind.
The layout drawings show gas pipelines running vertically through the building in a fairly clean and logical way. Branch connections to each apartment are clearly indicated, from kitchen points to water heaters. What works well here is the simplicity of routing — fewer turns, fewer complications, and ultimately fewer risks during installation.
Where the set becomes more valuable is in the detailing. Pipe supports, brackets, wall penetrations, and installation methods are all carefully drawn. These are the kinds of details that often get overlooked on paper but make a huge difference on site, especially when coordinating between teams.
The isometric diagrams are another strong point. They give a clear spatial understanding of the system, which is essential for gas installations. Anyone who has worked on similar systems knows that relying only on 2D plans can lead to confusion — this helps avoid that.
There’s also a good amount of technical data included. Flow rates, pipe diameters, pressure calculations — everything is summarized and ready to use. It shows that this isn’t just a conceptual drawing set, but something that has been thought through and checked properly.
That said, this isn’t beginner-friendly material. If you’re not familiar with gas systems, it might feel a bit overwhelming at first. But for engineers, designers, or anyone working on similar projects, it’s a very useful reference.
In short, this is a practical drawing set made for real construction work. It’s not trying to impress visually — it’s meant to function, and it does that quite well.
You may also consider downloading other Office building CAD drawings to support your project design
- File format: .DWG
- Size: 1.61 MB
- Source: DWGshare
- AutoCAD platform 2018 and later versions. For downloading files there is no need to go through the registration process
Advertisements