Advertisements









862. Download complete CAD drawings of a 5-storey house (4m x 17.8m) – Full architecture, structure & MEP
Some drawing sets immediately give you the sense that they’re made for real construction—not just for presentation. This 5-storey townhouse design, sized 4m x 17.8m, falls into that category. It doesn’t rely on flashy forms, but once you go through the drawings, you can feel the maturity of the designer: careful calculations, controlled decisions, and a clear focus on how people will actually live in the space.
The facade leans toward a modern style but avoids the common “all-glass for show” approach. The layers are arranged with intention: the ground floor is more enclosed for privacy and security, while upper levels gradually open up with balconies and larger glazing. A notable detail is the use of vertical screens and breeze blocks, which help filter sunlight while adding a subtle visual texture to the building.
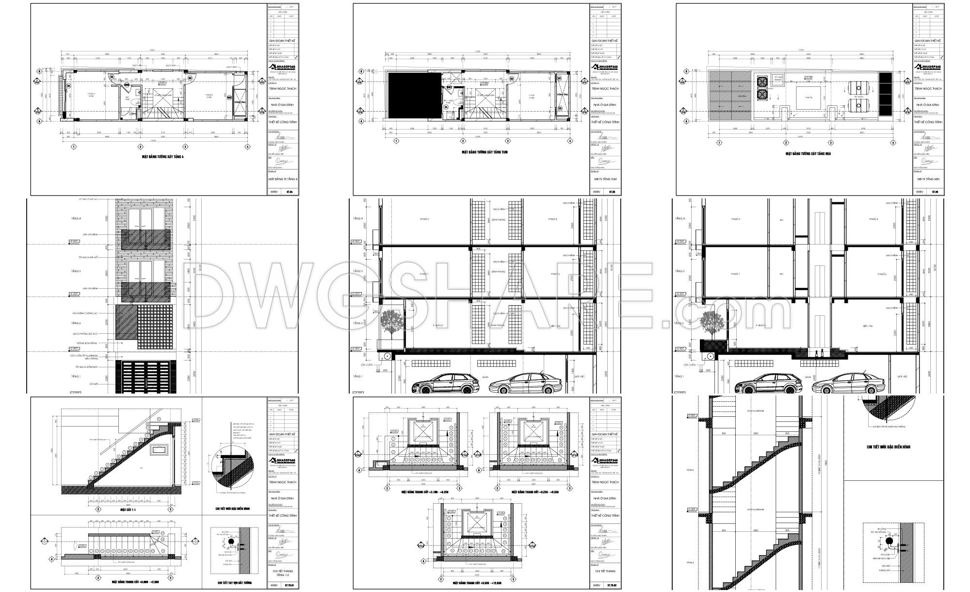
With a narrow width of just 4 meters, the biggest challenge is avoiding the typical “tube house” feeling. Here, placing the staircase near the center is a smart move. It divides the long layout into two balanced zones, allowing both sides to access light and ventilation. You can also see small voids or technical shafts integrated into the plan, helping air circulate better—something crucial for a house nearly 18 meters deep.
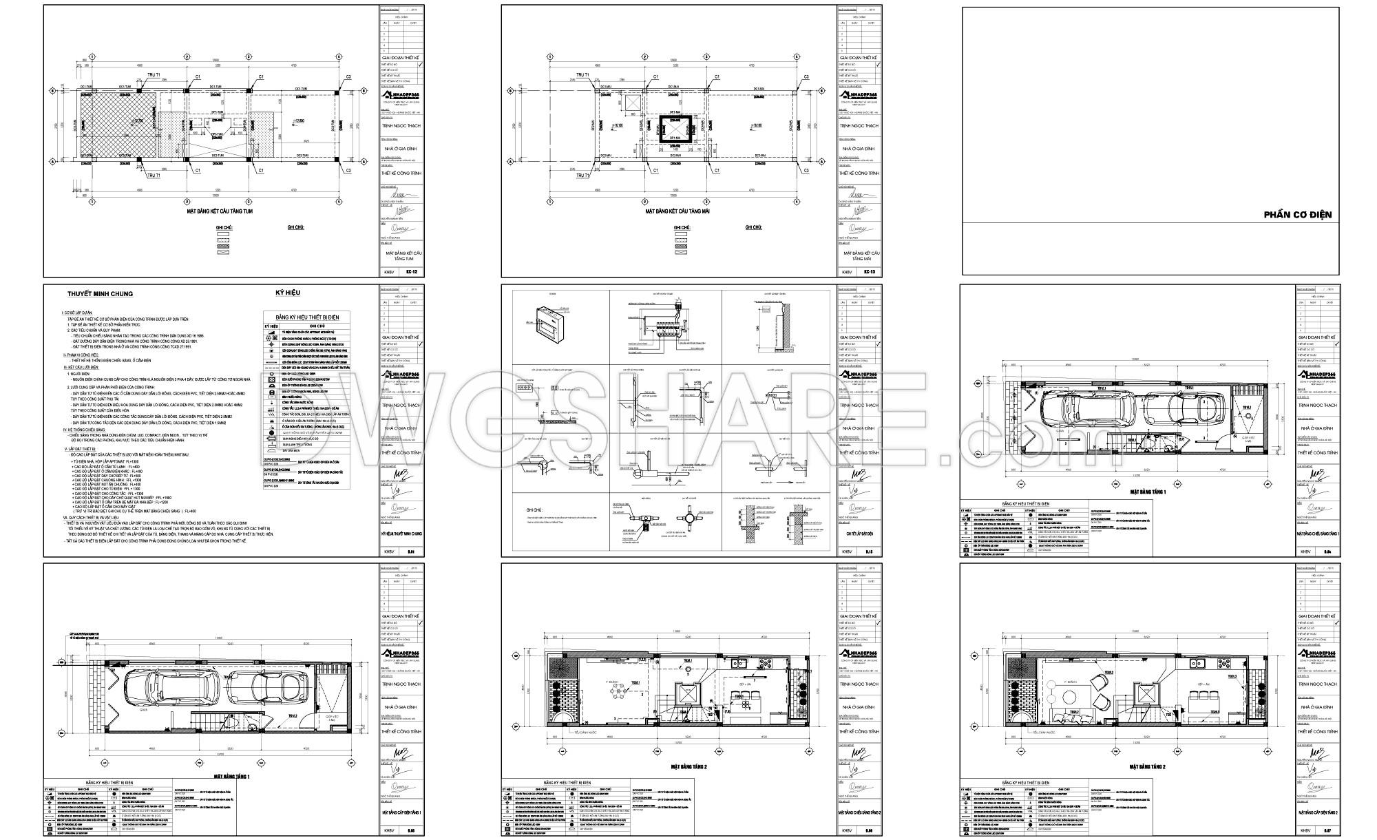
- The ground floor is mainly reserved for parking and service areas. The garage comfortably accommodates both a car and motorbikes, with a straightforward access layout. Toward the back, there’s space for storage, utilities, or a restroom—kept compact and efficient to avoid wasting valuable area.
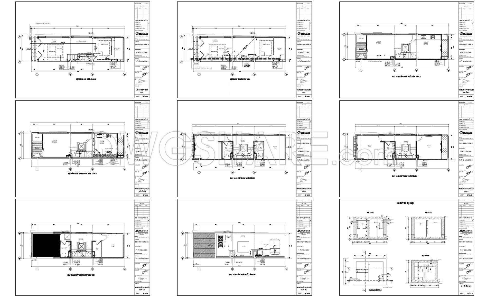
- The second floor becomes the main living space. The living room and kitchen–dining area are connected but not completely open. There are subtle separations—through levels, materials, or furniture arrangement—that maintain a sense of definition between spaces. The kitchen sits toward the rear, aligned with the technical core, which makes plumbing and ventilation much easier to manage.
- Upper floors (third and fourth) are dedicated to bedrooms. Despite the limited width, each room manages to have its own window or balcony, so none of them feel boxed in. Bathrooms are aligned vertically along a shared shaft, which is both cost-effective and practical for maintenance later on. Even details like door sizes and railing dimensions are carefully considered—not just sketched in for the sake of completeness.
- The fifth floor and rooftop level are more flexible. A worship room is placed in a quiet, elevated position, while the remaining space is used for laundry and a rooftop terrace. The perspective suggests the possibility of adding a pergola or light roof structure, creating a semi-outdoor space that’s both functional and pleasant.
Looking into the structural drawings, the foundation, beams, and columns are clearly defined. For a 5-storey house in an urban setting, this level of detail is critical. Reinforcement layouts are not treated lightly, which helps reduce risks during construction—especially when working with average contractors.
The staircase is another well-resolved element. Beyond the basic layout, the drawings include detailed sections, step dimensions, and handrail configurations. The proportions seem comfortable, not too steep—something that makes a real difference in daily use, even if it’s often overlooked.
Door and window systems are also thoroughly developed. Sizes, sill heights, and opening directions are clearly indicated, ensuring proper natural lighting and ventilation. In narrow houses, these details can significantly impact the overall living quality.
The MEP system is a strong point in this set. Electrical layouts, plumbing diagrams, and fixture placements are all clearly organized. Pipes follow logical vertical routes, avoiding structural conflicts. This kind of coordination reflects real experience and ensures long-term performance.
What stands out most is that the design doesn’t try too hard. It focuses on what actually matters: clear circulation, good airflow, sufficient light, solid structure, and a coherent technical system. That restraint is what gives it lasting value.
In the context of urban Vietnam, this is a practical yet well-refined solution. It works for multi-generational families or those combining living and working spaces. The footprint is modest, but the planning makes the most of every square meter.
In the end, this is the kind of drawing set you can confidently take to site. Not something that looks good on paper but falls apart during construction. It reflects a grounded design mindset—one that respects both function and reality, without forgetting about aesthetics.
In this design documentation package, the drawing disciplines include:
- Architectural drawings
- Structural drawings
- MEP (Mechanical, Electrical & Plumbing) drawings
- Water supply and drainage drawings
I also recommend downloading other House CAD drawings for your project reference.
- File format: .DWG; .PDF; .JPG
- Size: 21.3 MB
- Source: DWGshare
- AutoCAD platform 2018 and later versions. For downloading files there is no need to go through the registration process
Advertisements