98. Architectural Floor Plans of a 3-Story Office Building – Free Download Detailed CAD Drawings
Advertisements

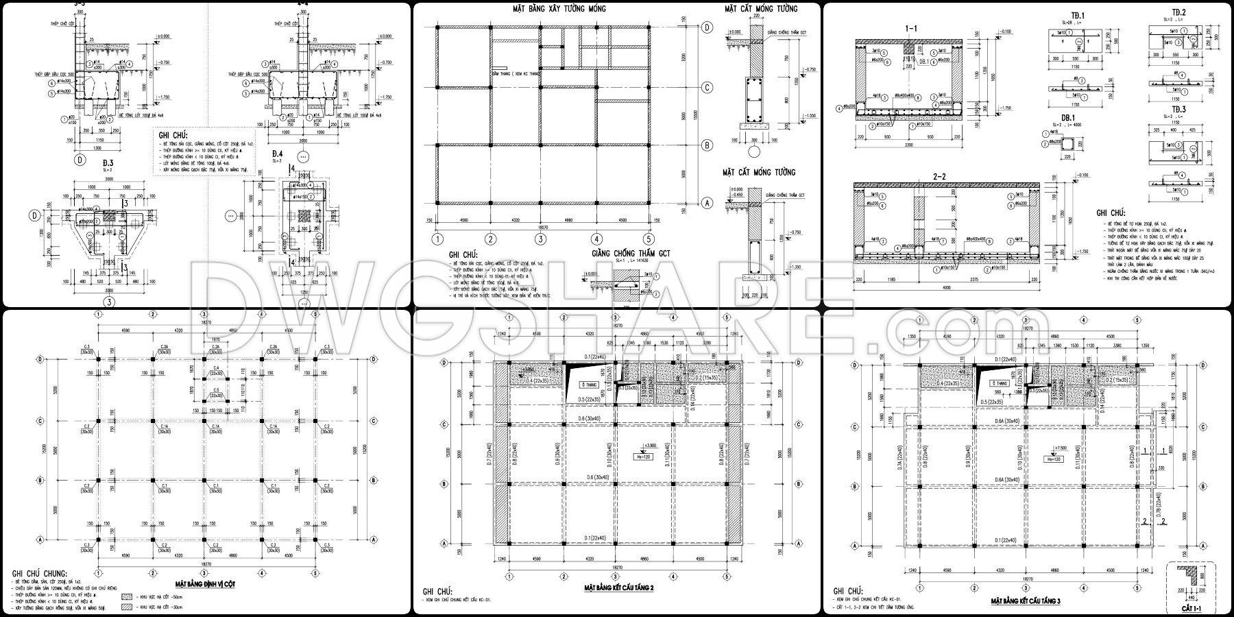
98. Architectural Floor Plans of a 3-Story Office Building – Free Download Detailed CAD Drawings
These are the architectural floor plans of a 3-story office building. The drawings include layouts for the ground floor, second floor, and third floor, showing functional spaces such as meeting rooms, offices, restrooms, staircases, and circulation areas. Each plan is annotated with precise dimensions, grid lines, and elevation markers, supporting construction and spatial coordination
You may also consider downloading other Office building CAD drawings to support your project design
- File format: .DWG
- Size: 305 KB
- Source: DWGshare
- AutoCAD platform 2018 and later versions. For downloading files there is no need to go through the registration process
Additionally, you can download the complete set of construction design drawings for this project here.
This drawing package includes:
- Floor plans, elevations, and sections
- Detailed architectural drawings
- Detailed staircase drawings
- Detailed sanitary drawings
- Electrical drawings
- Water supply and drainage drawings
- Ceiling lighting drawings
- Door and window drawings
- Structural drawings (PDF file only)
- Telecommunication drawings (PDF file only)















Advertisements