364. Free download of CAD technical drawings for the construction of bathrooms in townhouses
Advertisements


364. Free download of CAD technical drawings for the construction of bathrooms in townhouses
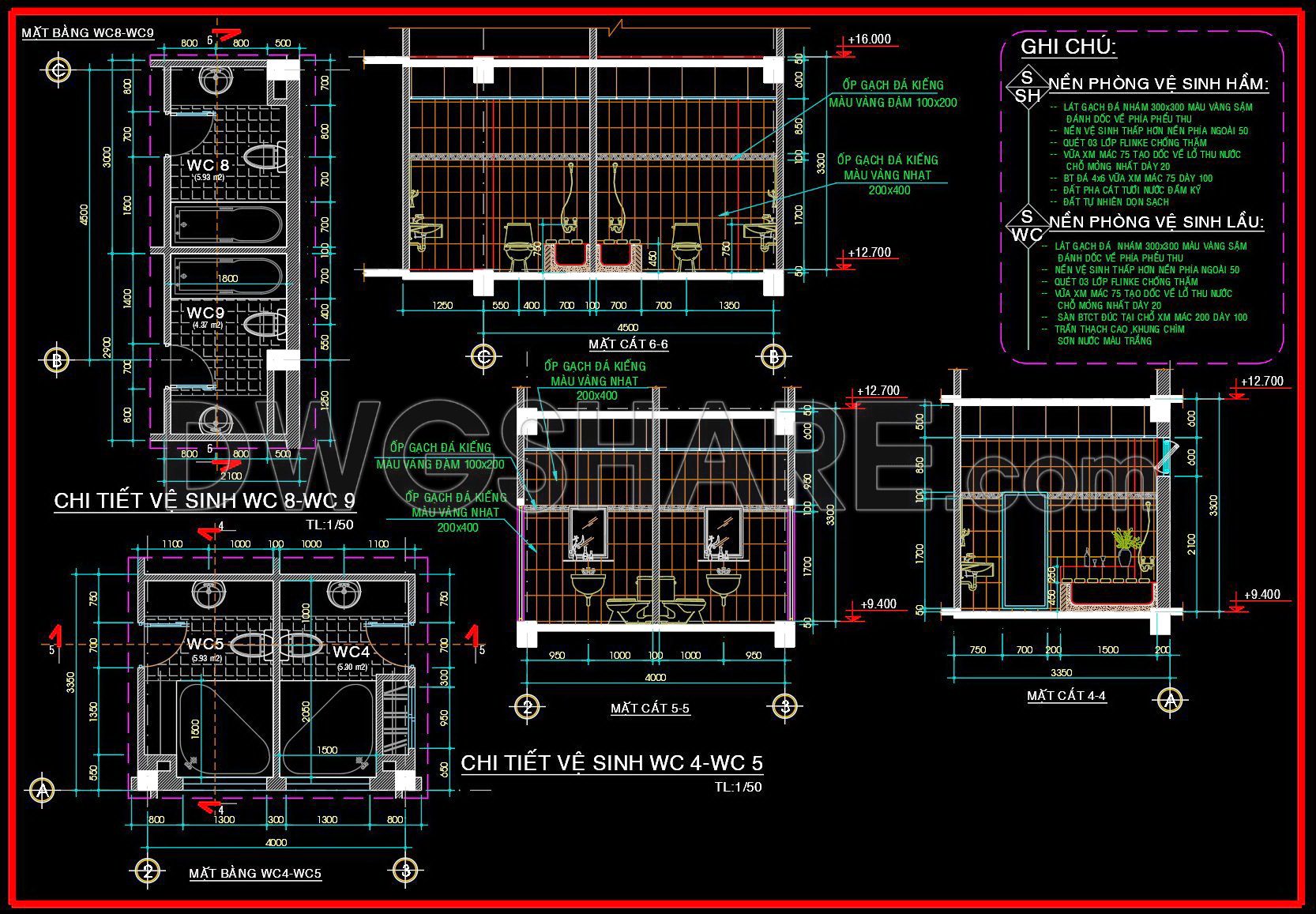
This CAD drawing provides detailed architectural and construction layouts for multiple bathroom (WC) units in a building project. It includes floor plans and cross-sections for WC1 through WC9, showing the precise placement of sanitary fixtures such as toilets, washbasins, bathtubs, and showers. Each unit is carefully dimensioned with wall-to-wall distances, fixture clearances, and floor elevations clearly marked. Cross-sections offer vertical details, including floor finishes, wall tiles, ceiling heights, and material specifications such as yellow marble cladding in two tones (200x400mm and 100x200mm). Technical notes explain waterproofing layers, slope directions, and drainage details for both wet and dry areas. The drawing also differentiates between standard bathrooms and those on upper floors, ensuring proper construction methods are followed. This level of detail makes the drawing an essential resource for contractors and interior fit-out teams. Whether you are an architect, engineer, or builder, you can download this CAD drawing for free to support your residential or commercial projects. It is drawn to a 1:50 scale, making it highly suitable for on-site reference and construction documentation.
You can also find a wider selection of free Cad Blocks and DWG models available for download here: Free CAD Blocks download
- File format: .DWG
- Size: 307 KB
- Source: dwgshare.com
- AutoCAD platform 2018 and later versions. For downloading files there is no need to go through the registration process
Advertisements