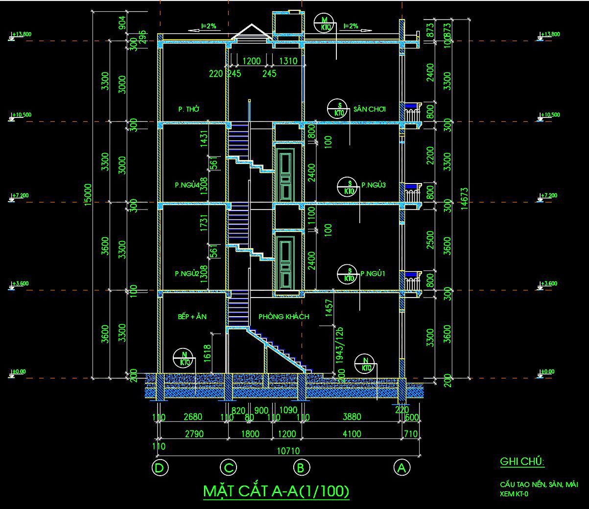
278. CAD design drawings for a 4-story townhouse with dimensions of 4m x 10m
Advertisements




278. CAD design drawings for a 4-story townhouse with dimensions of 4m x 10m
In this 4-story townhouse design, the functionalities are as follows:
– 1st floor: Garage for parking and a courtyard. Inside, there is a small living room and a kitchen.
– 2nd floor: Includes 2 large bedrooms with separate bathrooms.
– 3rd floor: Consists of 2 large bedrooms with separate bathrooms.
– 4th floor: 1 small bedroom and a garden area for planting ornamental trees.
Let’s take a look and download this CAD drawing for reference and use.
Additionally, you can download more house design drawings here
- File format: .DWG
- Size: 0.28 MB
- Source: Collect
- AutoCAD platform 2018 and later versions. For downloading files there is no need to go through the registration process
Advertisements